Tomt Poreč

Tomtstorlek

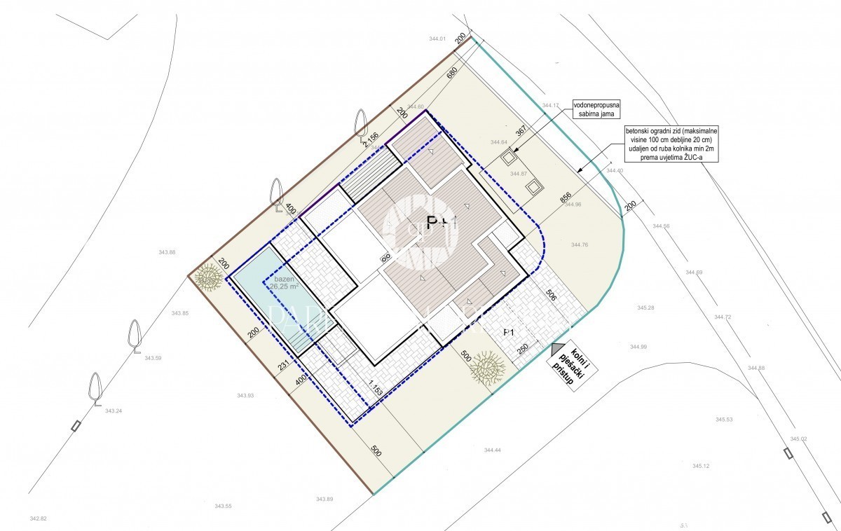
598 m2

Avstånd från centrum

20000 m

Avstånd från havet

20000 m

Poreč
114.000 €
191 €/m2
  • REI ID : 59213
  • Byråns interna ID : 1611
  • Publiceringsdatum : 09.12.2023.
  • Uppdatera datum : 20.04.2024.
  • Antal visningar : 1063
  • Anmäl en annons

All data och bilder på dessa webbplatser presenteras endast i informationssyfte, innan någon slutsats eller aktivitet baserad på data från dessa sidor bör all information kontrolleras med annonsören.

KONTAKTA EN AGENT