Stanovanje v pritličju moderne stavbe, z eno spalnico - v fazi gradnje

Velikost stavbe

53 m2

Število spalnic

1

Število kopalnic

1

Nadstropje

Pritličje

Poreč
204.639 €
3.861 €/m2
  • Oddaljenost od centra : 1500 m
  • Oddaljenost od morja : 800 m
  • Število spalnic : 1
  • Število sob : 3
  • Število kopalnic : 1
  • Parkirni prostor : Da
  • Dvigalo : Da
  • Klima : Da
  • Leto izdelave : 2024
  • Energetska učinkovitost : Ni določeno

OPIS NEPREMIČNINE

V moderni stavbi z dvigalom, nedaleč od morja, lepih plaž in znanih restavracij, je naprodaj stanovanje v pritličju stavbe.
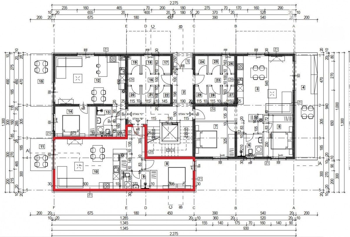
Stanovanje z uporabno površino 53,19 m2 bo sestavljeno iz hodnika, dnevne sobe, kuhinje, jedilnice, spalnice, kopalnice in pokrite terase.
Ogrevanje in hlajenje: v kopalnici bo vgrajeno električno talno gretje, spalnice in dnevna soba pa bo hlajena in ogrevana preko klime.
Steklena stena za izhod na pokrito teraso bo izdelana iz aluminija (troslojno steklo), ostalo stavbno pohištvo pa bo izdelano iz PVC-ja, vgrajene bodo tudi električne rolete in komarniki.
Stanovanju pripada tudi ena shramba v pritličju stavbe in eno parkirno mesto.
Kupec ne plača davka na promet nepremičnin, predviden zaključek gradnje je v začetku leta 2025.

  • REI ID : 52982
  • Notranji ID agencije : 1101
  • Datum objave : 17.02.2023.
  • Datum posodobitve : 04.07.2024.
  • Število ogledov : 1312
  • Prijavite oglas

Vsi podatki in slike na teh spletnih straneh so zgolj informativne narave, pred kakršnim koli zaključkom ali aktivnostjo na podlagi podatkov s teh strani je potrebno vse informacije preveriti pri oglaševalcu.

Niste našli, kar ste iskali? Oglejte si vse Stanovanja Poreč v naši ponudbi!

OBRNITE SE NA AGENTA