Prodaja, Zemljište, Građevinsko, Istarska županija, Svetvinčenat

Velikost parcele

548 m2

Svetvinčenat
136.000 €
248 €/m2

OPIS NEPREMIČNINE

SVETVINČENAT, OKOLICA, ATRAKTIVNO ZAZIDLJIVO ZEMLJIŠČE

V avtohtoni istrski vasici v okolici Svetvinčenta prodamo gradbeno zemljišče s projektom za stanovanjsko hišo z bazenom in gradbenim dovoljenjem.
Zemljišče se nahaja v bližini renesančnega mesta Svetvinčenta, ki ga odlikujejo bogata kulturna dediščina, pestra gastronomska in turistična ponudba ter številne prireditve skozi vse leto.
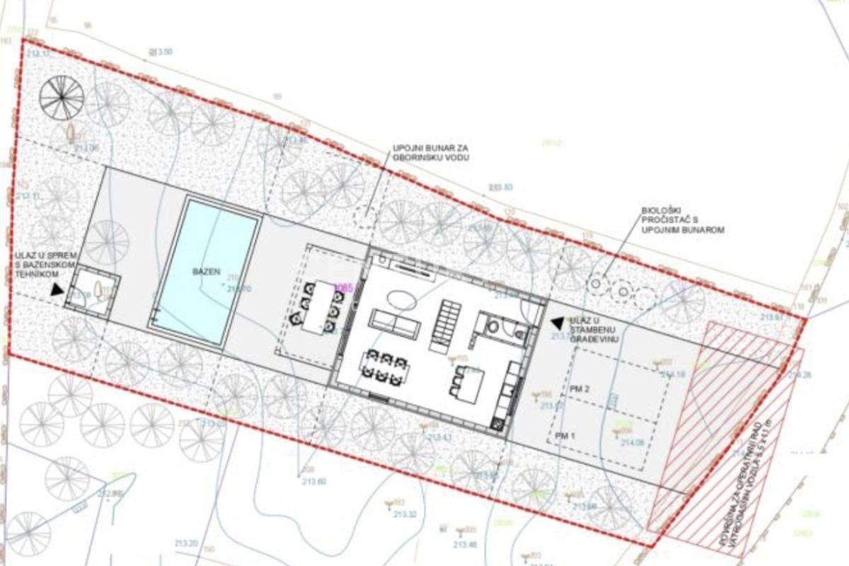
Zemljišče se nahaja na koncu vasi v slepi ulici, je pravilne oblike, površine je 548 m2.
Ima dostop z javne ceste, z 2 strani je omejeno s suhimi zidovi.
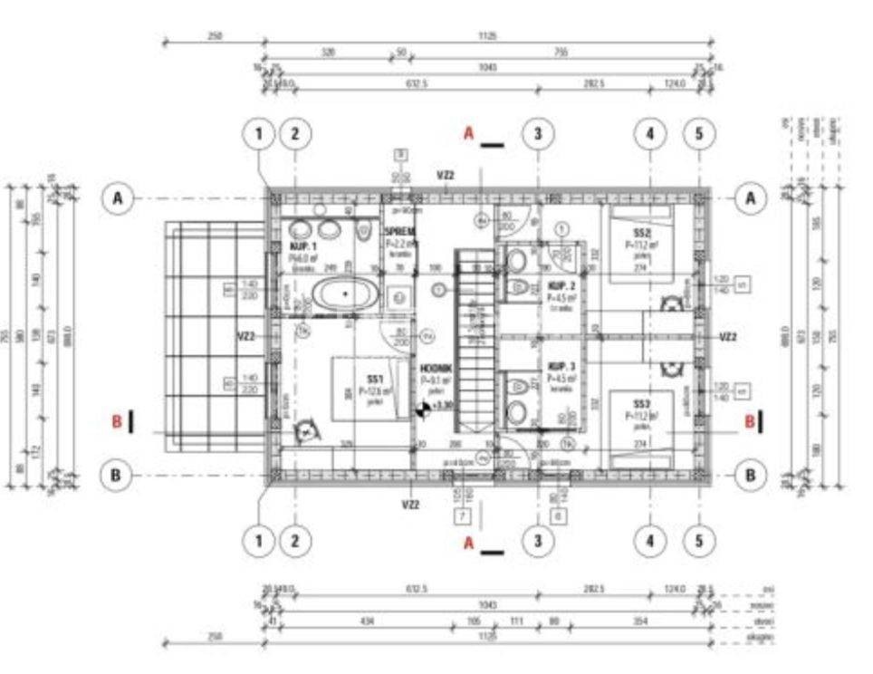
Na omenjenem zemljišču je predvidena gradnja samostojnega stanovanjskega objekta, pritličje in nadstropje, 120m2 neto, pomožni objekti - zunanji bazen, shramba z bazensko opremo, biološka čistilnica, 2 parkirni mesti.
V pritličju hiše so predvideni naslednji prostori: dnevna soba, jedilnica in kuhinja kot odprt prostor, shramba, wc in hodnik.
V prvo nadstropje vodijo notranje stopnice, v prvem nadstropju pa so 3 spalnice, vsaka s svojo kopalnico.
Zunanja terasa meri 40m2, bazen pa 28m2.
V neposredni bližini zemljišča se nahajajo lokalne hiše in počitniške hiše, zato je bodoča hiša idealna za tiste, ki želijo uživati ​​v vseh ugodnostih, ki jih ponuja mirna istrska vas ali za investitorje, ki lahko z oddajanjem počitniške hiše odlično zaslužijo. .
Na parceli so priključki za elektriko in vodo ter več starih oljk, katerih pridelek zagotavlja nekaj litrov oljčnega olja letno za lastno uporabo.

Prodajna cena vključuje glavni projekt, pravnomočno gradbeno dovoljenje, priključke za vodo in elektriko, plačane komunalne prispevke, pripravljeno in očiščeno gradbišče.

S prodajalcem se je možno dogovoriti za gradnjo predmetnega objekta v grobi fazi ali na ključ.

Oddaljenost: letališče Pula 20 km, morje 15 km, Rovinj 25 km



Kristijan Fraj
Agent s licencom
Mob: +385 95 578 9788
Tel: +385912222276
E-mail: kristijan.fraj@c21.hr
www.c21futura.com

  • REI ID : 91012
  • Notranji ID agencije : XML-3029-105029
  • Datum objave : 31.03.2026.
  • Datum posodobitve : 01.04.2026.
  • Število ogledov : 43
  • Prijavite oglas

Vsi podatki in slike na teh spletnih straneh so zgolj informativne narave, pred kakršnim koli zaključkom ali aktivnostjo na podlagi podatkov s teh strani je potrebno vse informacije preveriti pri oglaševalcu.

OBRNITE SE NA AGENTA