OKOLICA VIŠNJANE!!! Novozgrajena vila z bazenom in garažo, mirna lokacija

Velikost stavbe

377 m2

Velikost parcele

974 m2

Število spalnic

4

Število kopalnic

5

Višnjan
950.000 €
2.520 €/m2
  • Število nadstropij : 3
  • Število spalnic : 4
  • Število sob : 6
  • Število kopalnic : 5
  • Število stranišč : 1
  • Parkirni prostor : Da
  • Garaža : Da
  • Klet : Da
  • Bazen : Da
  • Energetska učinkovitost : Ni določeno

OPIS NEPREMIČNINE

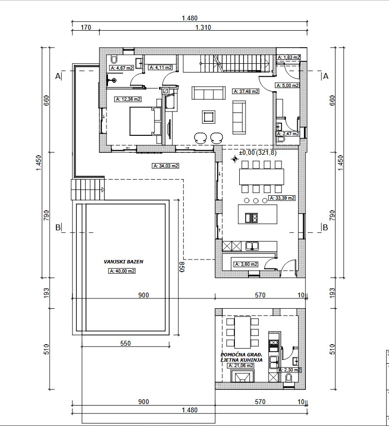
Ta čudovita novozgrajena vila se nahaja na robu istrske vasi nedaleč od Višnjana (7 km). Lokacija je zelo mirna in obdana z naravo, kar zagotavlja maksimalno zasebnost. Predvideno dokončanje hiše pred vselitvijo je poletje 2025. Sestavljena je iz treh nadstropij: polkleti, pritličja in prvega nadstropja. V polkleti se nahajajo garaža, strojnica za bazen, tehnični prostor, stranišče in prostor, ki je namenjen biljardu, prostoru za druženje, možno pa ga je preurediti tudi v wellness prostor za savno ali fitnes. V pritličje vodijo notranje stopnice. V pritličju se nahajajo vhodna dvorana, dnevna soba, jedilnica, kuhinja, spalnica z lastno kopalnico in stranišče za goste. Vse sobe imajo dostop do prostorne terase velikosti 34,03 m2 in vrta. V zgornjem nadstropju so še tri spalnice z lastnimi kopalnicami. Ena soba ima ložo, kjer lahko postavite jacuzzi za dve osebi, vse sobe pa imajo dostop do prostornega balkona velikosti 31,86 m2. Na vrtu so parkirna mesta, 23,36 m2 velika letna kuhinja z WC-jem in 40 m2 velik bazen. Lokacija je idealna za tiste, ki želijo biti stran od mestnega vrveža in hrupa, a hkrati blizu centra mesta (7 km).

Ogrevanje je talno regulirano s klimatsko napravo, hlajenje pa prav tako s klimatsko napravo. Pripravljena je tudi namestitev fotovoltaične elektrarne in ima polnilnik za električne avtomobile. Voda se ogreva s toplotno črpalko. Stavbno pohištvo je PVC s troslojnim steklom.

Cena hiše je 950.000 EUR + DDV 25 %.

Sanja Terlević
Agent s licencom
Mob: +385 91 612 5041
Tel: +385 91 612 5041
E-mail: info@realistria.com
www.realistria.com

  • REI ID : 78776
  • Notranji ID agencije : XML-4351-605032
  • Datum objave : 07.07.2025.
  • Datum posodobitve : 07.07.2025.
  • Število ogledov : 455
  • Prijavite oglas

Vsi podatki in slike na teh spletnih straneh so zgolj informativne narave, pred kakršnim koli zaključkom ali aktivnostjo na podlagi podatkov s teh strani je potrebno vse informacije preveriti pri oglaševalcu.

OBRNITE SE NA AGENTA