Okolica Buj, hiša z bazenom

Velikost stavbe

175 m2

Velikost parcele

450 m2

Število spalnic

3

Število kopalnic

3

Buje, Momjan
610.000 €
3.486 €/m2
  • Oddaljenost od centra : 5000 m
  • Oddaljenost od morja : 15000 m
  • Število nadstropij : 2
  • Število spalnic : 3
  • Število sob : 4
  • Število kopalnic : 3
  • Pogled na morje : Da
  • Parkirni prostor : Da
  • Leto izdelave : 2024
  • Energetska učinkovitost : Ni določeno

OPIS NEPREMIČNINE

Istra, okolica Buj

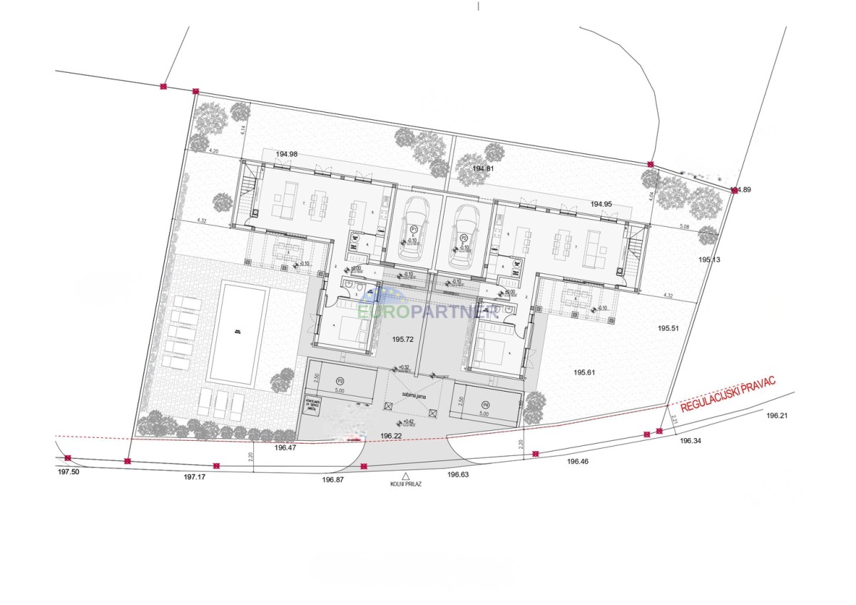
Ta čudovita novogradnja se nahaja na izjemno iskani lokaciji med Bujami in Momjanom, v mirnem družinskem naselju le 15 km od morja in nekaj minut vožnje od slovenske meje. Gre za hišo dvojček z lastnim vrtom, bazenom in garažo, ki zagotavlja popolno kombinacijo zasebnosti in udobja.

Vsaka od teh dveh hiš pokriva površino 175 m2, ki se razprostira v dveh etažah. V pritličju se nahaja garaža in bivalni del, ki obsega predsobo, prostorno dnevno sobo z jedilnico in kuhinjo ter izhodom na veliko teraso, shrambo, spalnico in kopalnico. V prvem nadstropju sta še dve spalnici, vsaka s svojo kopalnico, ter velika terasa z jacuzzijem, ki ponuja čudovit razgled na okolico.

Hiša se prodaja v celoti opremljena, s skrbno izbranim pohištvom in opremo, ki bo zadovoljila tudi najzahtevnejše kupce. Vsaka podrobnost, od razporeditve prostorov do notranje opreme, je prilagojena tako, da zagotavlja idealno kombinacijo estetike in funkcionalnosti.

Ena izmed glavnih prednosti te nepremičnine je njena izjemna lokacija. V neposredni bližini so številne znamenitosti, zato vse več domačih in tujih gostov izbira Istro kot destinacijo za počitnice ali celo stalno bivanje. Tukaj so najboljše istrske kleti, kmečki turizmi, družinske kmetije in restavracije, ki nudijo bogato izkušnjo istrske kulture in gastronomije.

Poleg tega se hiša nahaja na robu naseljenega območja, kar zagotavlja mir in zasebnost tudi v času turistične sezone. Kljub temu je vse lahko dostopno, saj je Umag oddaljen le 15 minut vožnje, Slovenija pa le 10 minut.

Ta nepremičnina bo vseljiva poleti 2024, kar predstavlja idealno priložnost za uživanje v čudovitem istrskem okolju z vsem udobjem sodobne gradnje in opreme.

  • REI ID : 69371
  • Notranji ID agencije : 8330
  • Datum objave : 06.11.2024.
  • Datum posodobitve : 07.04.2026.
  • Število ogledov : 881
  • Prijavite oglas

Vsi podatki in slike na teh spletnih straneh so zgolj informativne narave, pred kakršnim koli zaključkom ali aktivnostjo na podlagi podatkov s teh strani je potrebno vse informacije preveriti pri oglaševalcu.

OBRNITE SE NA AGENTA