Luksuzna vila z bazenom, strešno teraso in čudovitim razgledom - v fazi gradnje

Velikost stavbe

330 m2

Velikost parcele

1000 m2

Število spalnic

5

Število kopalnic

5

Poreč
1.250.000 €
3.788 €/m2
  • Oddaljenost od centra : 9000 m
  • Oddaljenost od morja : 9000 m
  • Število nadstropij : 2
  • Število spalnic : 5
  • Število sob : 7
  • Število kopalnic : 5
  • Število stranišč : 2
  • Pogled na morje : Da
  • Parkirni prostor : Da
  • Garaža : Da
  • Klima : Da
  • Bazen : Da
  • Leto izdelave : 2023
  • Energetska učinkovitost : Ni določeno

OPIS NEPREMIČNINE

Istra, okolica Poreča

V bližini mesta Poreč se nahaja ta impozantna luksuzna vila s skupno površino 330m2 z bogato vsebino in čudovitim panoramskim razgledom.

Vila je razdeljena na 3 etaže.

V kleti je opremljen fitnes in savna s tušem, po potrebi pa tudi garaža za avto.

Pritličje je razdeljeno na odprt bivalni del, kjer se nahajajo kuhinja, jedilnica in dnevna soba z veliko sončne svetlobe, ki prodira skozi stekleno steno, ki poteka vzdolž celotnega bivalnega dela in ga povezuje s teraso, ki je delno pokrita. V tem nadstropju je še ena spalnica, kopalnica in WC za goste.

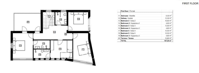
V prvem nadstropju imamo kar 4 spalnice, od tega imata 2 lastni kopalnici, glavna spalnica pa ima izhod na lastno teraso.
Ostalim sobam je na voljo skupna kopalnica in velika strešna terasa pokrita z moderno pergolo, ki resnično ponuja fenomenalen panoramski pogled na pokrajino in morje.

Na dvorišču je bazen, jacuzzi in pokrita letna kuhinja za druženje in obedovanje.

Po celotni hiši bo nameščeno električno talno gretje in klimatske naprave za poletno hlajenje.

Zaključek gradnje te vile je predviden v začetku leta 2024.

Razkošje in udobje, ki ju ponuja ta vila z resnično bogato vsebino in dih jemajočim razgledom, sta redka priložnost na trgu.

  • REI ID : 54098
  • Notranji ID agencije : 1236
  • Datum objave : 13.04.2023.
  • Datum posodobitve : 11.05.2023.
  • Število ogledov : 1506
  • Prijavite oglas

Vsi podatki in slike na teh spletnih straneh so zgolj informativne narave, pred kakršnim koli zaključkom ali aktivnostjo na podlagi podatkov s teh strani je potrebno vse informacije preveriti pri oglaševalcu.

Niste našli, kar ste iskali? Oglejte si vse Hiše Poreč v naši ponudbi!

OBRNITE SE NA AGENTA