Kamnita hiša – možnost izvedbe na ključ

Velikost stavbe

82 m2

Velikost parcele

109 m2

Število spalnic

2

Število kopalnic

1

Poreč, Baderna
185.000 €
2.256 €/m2
  • Velikost vrta : 8 m2
  • Oddaljenost od morja : 150000 m
  • Število spalnic : 2
  • Število sob : 3
  • Število kopalnic : 1
  • Število stranišč : 1
  • Parkirni prostor : Da
  • Leto izdelave : 2025
  • Energetska učinkovitost : Ni določeno

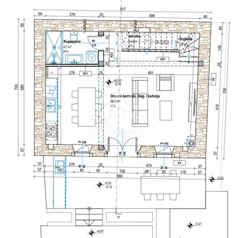
OPIS NEPREMIČNINE

Naprodaj je hiša v napredni fazi gradnje (roh-bau) z veljavnim gradbenim dovoljenjem in prijavljenim začetkom gradnje. Izvedena je armiranobetonska temeljna plošča ter armiranobetonska medetažna konstrukcija z betonskimi stopnicami. Postavljena je nova lesena strešna konstrukcija z vsemi potrebnimi sloji, kot končna kritina pa je uporabljen mediteranski strešnik. V pritličju je zgrajena predelna stena za WC. V skladu s projektom so izvedene štiri nove odprtine z vgradnjo originalnih kamnitih okvirjev na zunanji fasadi, s čimer je ohranjen avtentičen videz objekta.

Na nepremičnini sta zagotovljena vodovodni priključek in gradbeni priključek elektrike. Hiša se prodaja v trenutni fazi dokončanosti z možnostjo izvedbe na ključ po dogovoru in željah kupca. Odlična priložnost za nadaljevanje gradnje brez administrativnih ovir, saj so najzahtevnejša konstrukcijska dela že zaključena.

Sandra Matošević Prenc
Agent s licencom
Mob: +385 91 528 4841
E-mail: sandra@crown-properties.hr
https://crown-properties.hr/

Crown Properties
Voditelj ureda
Mob: +385 91 528 4841
E-mail: info@crown-properties.hr
https://crown-properties.hr/

  • REI ID : 89136
  • Notranji ID agencije : XML-3201-291380
  • Datum objave : 12.02.2026.
  • Datum posodobitve : 18.04.2026.
  • Število ogledov : 314
  • Prijavite oglas

Vsi podatki in slike na teh spletnih straneh so zgolj informativne narave, pred kakršnim koli zaključkom ali aktivnostjo na podlagi podatkov s teh strani je potrebno vse informacije preveriti pri oglaševalcu.

Niste našli, kar ste iskali? Oglejte si vse Hiše Poreč v naši ponudbi!

OBRNITE SE NA AGENTA