Istra, Diminići: Moderna vila s pogledom na morje

Velikost stavbe

151 m2

Velikost parcele

622 m2

Število spalnic

3

Število kopalnic

0

Raša
570.000 €
3.775 €/m2
  • Oddaljenost od morja : 1500 m
  • Število nadstropij : 2
  • Število spalnic : 3
  • Število sob : 4
  • Pogled na morje : Da
  • Bazen : Da
  • Energetska učinkovitost : Ni določeno

OPIS NEPREMIČNINE

Ta moderna vila se nahaja v mirnem obalnem območju Diminići v vzhodni Istri in ponuja panoramski pogled na morje ter prefinjen mediteranski način življenja le 1,5 km od jadranske obale. Nepremičnina je del skrbno načrtovanega stanovanjskega kompleksa devetih vil, zasnovanih tako, da zagotavljajo zasebnost, udobje in sodobno arhitekturo v popolni harmoniji z okoliško naravno pokrajino.

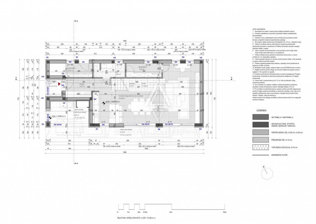
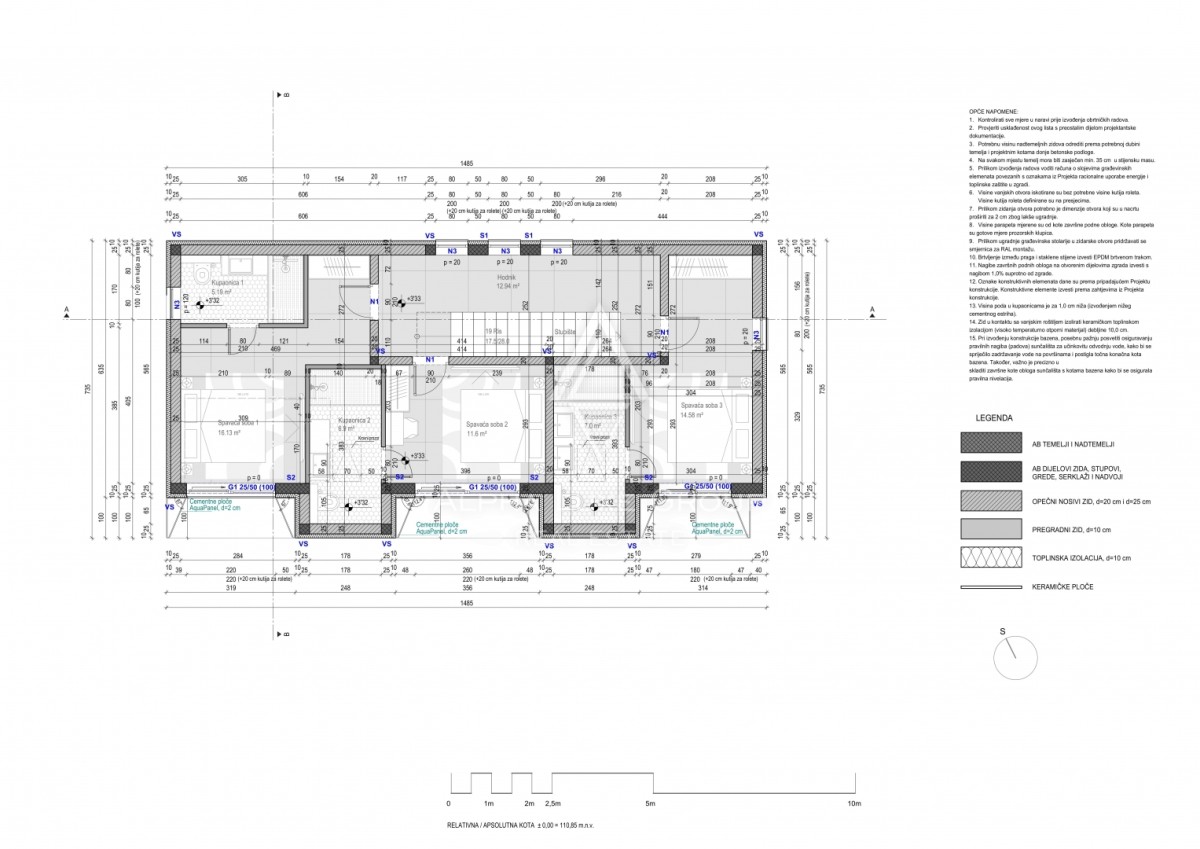
Vila stoji na zemljišču velikosti približno 622 m2 in ima skupno bruto površino približno 181,22 m2 ter neto bivalno površino približno 151,11 m2. Hiša je zasnovana v dveh etažah, notranja razporeditev pa poudarja prostornost in funkcionalnost, zaradi česar je nepremičnina idealna za družinsko bivanje, počitniško uporabo ali kot investicija v luksuzne nepremičnine blizu morja. Vila se prodaja neopremljena, kar bodočim lastnikom omogoča popolno prilagoditev notranjosti glede na njihove želje in življenjski slog.

Zunanje bivanje predstavlja pomemben element te nepremičnine. Urejena okolica vključuje ogrevan infinity bazen dimenzij približno 9 m × 3,5 m, ki ustvarja spektakularno vizualno povezavo z morjem in naravno pokrajino. Arhitekturna zasnova omogoča tekoč prehod med notranjimi in zunanjimi prostori ter ustvarja idealno okolje za sprostitev, druženje in uživanje v mediteranskem podnebju.

Gradnja je že začeta, gradbeno dovoljenje je potrjeno, gradbišče pa uradno odprto. Konstrukcijska faza kompleksa vil je že zaključena, predviden rok dokončanja projekta pa je približno dvanajst mesecev. Kupcem je na voljo celotna arhitekturna dokumentacija, vključno s podrobnimi tlorisi, arhitekturnimi načrti in sodobnimi mediteranskimi 3D vizualizacijami, ki prikazujejo končni videz nepremičnine.

Med gradnjo imajo bodoči lastniki tudi možnost dodatnih nadgradenj in prilagoditev vile glede na svoje želje. Na voljo so storitve notranjega oblikovanja, vrhunske rešitve opreme, vgradnja jacuzzija, pergole in drugi luksuzni elementi, ki dodatno izboljšajo udobje in kakovost bivanja.

Diminići je očarljivo obalno območje na vzhodni strani istrskega polotoka, znano po neokrnjeni naravi, kristalno čistem morju in osupljivih pogledih na obalo. Regija ponuja mirno mediteransko okolje, hkrati pa je dobro povezana z bližnjimi mesti, restavracijami, marinami in kulturnimi znamenitostmi. Bližina Jadranskega morja, slikovita pokrajina in vse večje povpraševanje po luksuznih vilah naredijo to lokacijo izjemno privlačno za bivanje in investicije v nepremičnine.

Vaše zadovoljstvo je naša misija. Veselimo se prihodnjega sodelovanja!

https://alphaluxegroup.si

Marijana Budimir
Agent s licencom
Mob: +385 95 363 1893
Tel: +385 52 204 933
E-mail: marijana@alphaluxegroup.com
https://alphaluxegroup.com

Robert Budimir
Agent s licencom
Mob: +385 95 363 1892
Tel: +385 52 204 933
E-mail: robert@alphaluxegroup.com
https://alphaluxegroup.com

  • REI ID : 90163
  • Notranji ID agencije : XML-3135-296190
  • Datum objave : 07.03.2026.
  • Datum posodobitve : 30.03.2026.
  • Število ogledov : 163
  • Prijavite oglas

Vsi podatki in slike na teh spletnih straneh so zgolj informativne narave, pred kakršnim koli zaključkom ali aktivnostjo na podlagi podatkov s teh strani je potrebno vse informacije preveriti pri oglaševalcu.

OBRNITE SE NA AGENTA