Apartma z bazenom v novogradnji - Istra

Velikost stavbe

145 m2

Število spalnic

3

Število kopalnic

3

Nadstropje

Pritličje

Tar-Vabriga, Tar
541.200 €
3.732 €/m2
  • Velikost parcele : 97 m2
  • Velikost vrta : 97 m2
  • Oddaljenost od centra : 500 m
  • Oddaljenost od morja : 3000 m
  • Število spalnic : 3
  • Število sob : 4
  • Število kopalnic : 3
  • Število stranišč : 1
  • Parkirni prostor : Da
  • Bazen : Da
  • Leto izdelave : 2023
  • Energetska učinkovitost : Ni določeno

OPIS NEPREMIČNINE

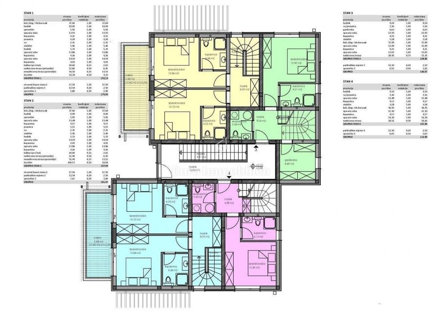
Prodamo stanovanje v novogradnji z bazenom. Stavba ima samo 4 stanovanjske enote in se nahaja na mirni lokaciji, nedaleč od centra mesta z vsemi potrebnimi vsebinami in ponuja pogled na morje iz zgornjih etaž stavbe (prvo in drugo nadstropje). Vsi apartmaji so v dveh etažah.

Stanovanje obsega pritličje in prvo nadstropje. V pritličju se nahajajo hodnik, pralnica, wc, kopalnica, spalnica, shramba, kuhinja, jedilnica in dnevna soba (odprta površina 37,60 m2) ter pokrita terasa 12,90 m2. Notranje stopnice vodijo v prvo nadstropje, kjer sta še dve spalnici z dvema kopalnicama, hodnik in skupni balkon 10,60 m2. Iz dnevne sobe v pritličju greste na vrt 97 m2, kjer se nahaja bazen 17,50 m2, tuš, ter urejen in ograjen vrt. Stanovanju pripada tudi eno parkirno mesto 12,50 m2 in shramba 7,67 m2.
Ogrevanje: talno električno; klima.
Mizarstvo: ALU-PVC z električnimi žaluzijami.

Provizija agencije za kupca iznosi 3% + PDV i plaća se u slučaju kupovine nekretnine kod zaključenja kupoprodajnog Ugovora.

Euro Immobilien d.o.o.
Mob: 00385 (0)99 444 0660
Tel: +385 51 220 024
E-mail: info@euro-immobilien.hr
www.euro-immobilien.hr

  • REI ID : 71194
  • Notranji ID agencije : XML-4069-555217
  • Datum objave : 27.12.2024.
  • Datum posodobitve : 04.09.2025.
  • Število ogledov : 836
  • Prijavite oglas

Vsi podatki in slike na teh spletnih straneh so zgolj informativne narave, pred kakršnim koli zaključkom ali aktivnostjo na podlagi podatkov s teh strani je potrebno vse informacije preveriti pri oglaševalcu.

OBRNITE SE NA AGENTA