Apartma 1 v dveh etažah Frata Poreč - v fazi gradnje

Velikost stavbe

175 m2

Število spalnic

3

Število kopalnic

3

Nadstropje

Pritličje

Tar-Vabriga, Tar
544.000 €
3.109 €/m2
  • Oddaljenost od centra : 700 m
  • Oddaljenost od morja : 3000 m
  • Število nadstropij : 2
  • Število spalnic : 3
  • Število sob : 3
  • Število kopalnic : 3
  • Pogled na morje : Da
  • Parkirni prostor : Da
  • Klima : Da
  • Bazen : Da
  • Leto izdelave : 2024
  • Energetska učinkovitost : A

OPIS NEPREMIČNINE

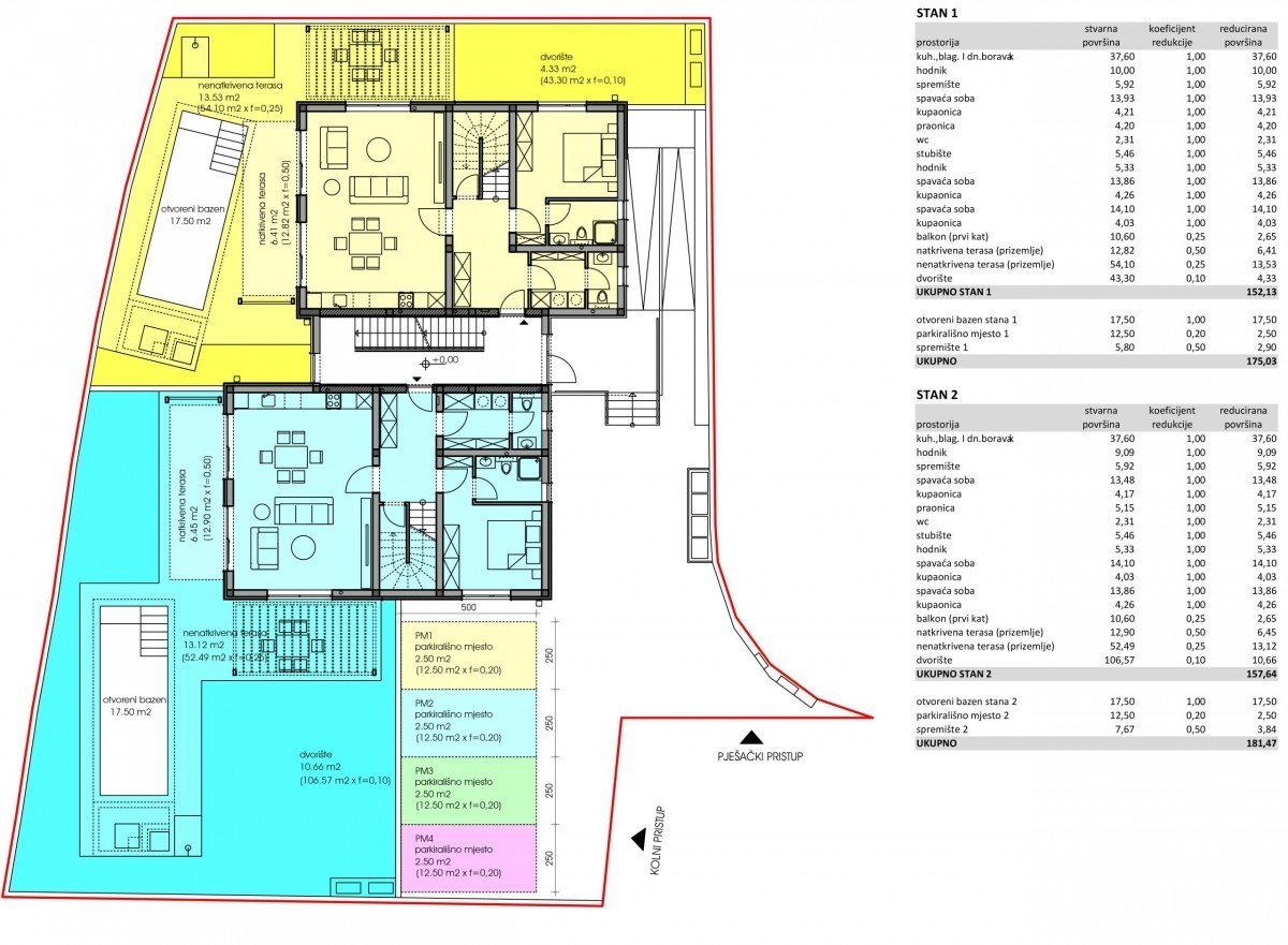
Stanovanje s površino 152,13 m2 se razteza v dveh etažah: pritličje in nadstropje. V pritličju je hodnik, prostorna dnevna soba z odprto kuhinjo in jedilnico, ena spalnica, kopalnica in wc. Iz dnevne sobe je direkten dostop na lepo pokrito teraso 12,82 m2 in nepokrito teraso 54 m2 ter bazen na dvorišču 17,50 m2. Prvo nadstropje je dostopno po notranjih stopnicah. V prvem nadstropju sta še dve spalnici, vsaka s svojo kopalnico in izhodom na 10,60 m2 velik balkon. Stanovanju pripada tudi parkirno mesto in shramba v kleti.

Stanovanjski objekt ima urejeno vso komunalno infrastrukturo (cesta, mestna kanalizacija, elektrika in vodovod).

Odkup na ključ, nepremičnina popolnoma dokončana in vseljiva, brez pohištva. Predviden zaključek del je konec leta 2023.

Stavba se nahaja v mirni soseski v bližini vseh pomembnih objektov (restavracije, lekarne, pekarne, trgovine itd.), obdana z naravo in zelenjem, in je idealna priložnost za vse tiste, ki iščete privlačno nepremičnino v bližini morja, primerno za bivanje in počitnikovanje ter oddajanje v turistične namene. Kupec je oproščen plačila davka na promet nepremičnin.

  • REI ID : 55380
  • Notranji ID agencije : 3038
  • Datum objave : 25.06.2023.
  • Datum posodobitve : 24.06.2023.
  • Število ogledov : 1441
  • Prijavite oglas

Vsi podatki in slike na teh spletnih straneh so zgolj informativne narave, pred kakršnim koli zaključkom ali aktivnostjo na podlagi podatkov s teh strani je potrebno vse informacije preveriti pri oglaševalcu.

OBRNITE SE NA AGENTA