Appartement Poreč

Gebouwgrootte

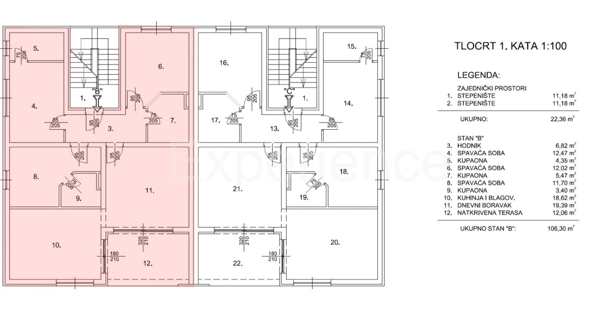
110 m2

Aantal slaapkamers

3

Aantal badkamers

3

Verdieping

1

Poreč
480.000 €
4.364 €/m2
  • Aantal verdiepingen : 2
  • Aantal slaapkamers : 3
  • Aantal kamers : 4
  • Aantal badkamers : 3
  • Parkeren : Ja
  • Jaar van constructie : 2023
  • Energie-efficiëntie : Niet gespecificeerd
  • REI ID : 78325
  • Interne ID van het bureau : 2010
  • Datum van publicatie : 01.07.2025.
  • Updatedatum : 12.03.2026.
  • Aantal weergaven : 319
  • Een advertentie melden

Alle gegevens en afbeeldingen op deze websites worden uitsluitend voor informatieve doeleinden gepresenteerd, voordat enige conclusie of activiteit op basis van gegevens van deze pagina's wordt genomen, moet alle informatie bij de adverteerder worden gecontroleerd.

Niet gevonden wat u zocht? Bekijk alle Appartementen Poreč in ons aanbod!

CONTACT OPNEMEN MET EEN AGENT