Appartement

Gebouwgrootte

98.60 m2

Aantal slaapkamers

4

Aantal badkamers

2

Verdieping

Begane grond

Rovinj
515.000 €
5.223 €/m2
  • Perceelgrootte : 49.10 m2
  • Afstand van het centrum : 2000 m
  • Aantal verdiepingen : 3
  • Aantal slaapkamers : 4
  • Aantal kamers : 4
  • Aantal badkamers : 2
  • Parkeren : Ja
  • Garage : Ja
  • Airconditioning : Ja
  • Jaar van constructie : 2023
  • Energie-efficiëntie : A+

BESCHRIJVING VAN DE VASTGOED

Nieuw, modern residentieel complex in Rovinj.

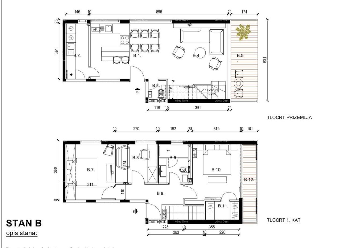
APPARTEMENT B, Gebouw B1
Duplex 4-kamer appartement, georiënteerd op het zuidoosten.
De begane grond bestaat uit: entree, toilet, berging/opslag, keuken en eetkamer, woonkamer met interne trap.
Op de eerste verdieping bevinden zich: twee slaapkamers, een werkkamer, een garderobe, een badkamer en een loggia.
Buitenruimtes omvatten: overdekt terras, terras met pergola en een tuin van 49,10 m² (netto 4,91 m²).

Aanvullende ruimtes: toegewezen buitenparkeerplaats.
De netto bruikbare oppervlakte van het gesloten deel van het appartement is 98,6 m².
De totale berekende oppervlakte van het appartement is 109,58 m².

Vloeren in het appartement en gemeenschappelijke ruimtes:

Slaapkamers, woonkamer, hal – Vloer: eiken parket, oak astig MF1200LHD TENSEO X-MATT AKZENT
Keuken/berging/badkamer/WC – Vloer- en wandtegels: Argenta storm – cream
Terras – Vloertegels: Argenta gravel out – cream
Hal-gemeenschappelijke ruimtes – Vloertegels: Argenta gravel out – cream (trappen en bordessen)
Verwarming in het appartement – Warmtepompsysteem

Voor meer informatie kunt u contact opnemen met:
Azra
+385 91 611 5706
+385 98 420 885
azra@almadominvest.com

  • REI ID : 87250
  • Interne ID van het bureau : 26490
  • Datum van publicatie : 13.01.2026.
  • Updatedatum : 12.01.2026.
  • Aantal weergaven : 234
  • Een advertentie melden

Alle gegevens en afbeeldingen op deze websites worden uitsluitend voor informatieve doeleinden gepresenteerd, voordat enige conclusie of activiteit op basis van gegevens van deze pagina's wordt genomen, moet alle informatie bij de adverteerder worden gecontroleerd.

Niet gevonden wat u zocht? Bekijk alle Appartementen Rovinj in ons aanbod!

CONTACT OPNEMEN MET EEN AGENT