Vendita - terreno edificabile con permesso, la costruzione può iniziare subito! Kanfanar!

Superficie di particela

727 m2

Distanza dal centro

800 m

Distanza dal mare

19000 m

Canfanaro
135.000 €
186 €/m2

DESCRIZIONE DELL'IMMOBILE

In vendita terreno edificabile con permesso di costruzione – Kanfanar

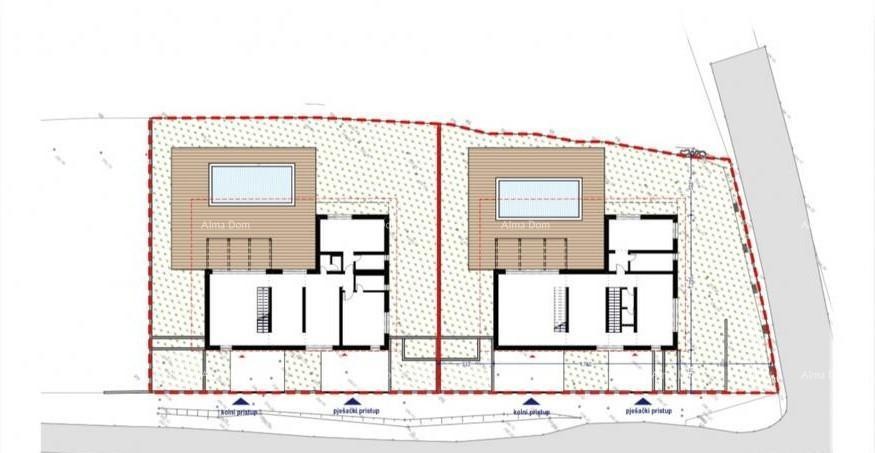
Si vende un terreno edificabile in una zona tranquilla ai margini del paese di Kanfanar, situato all'estremità della zona edificabile. Il lotto ha accesso da una strada asfaltata, è pianeggiante ed è ideale per la costruzione.

Si trova a soli 3 km dall'uscita dell'autostrada per Rovinj e, grazie alla sua eccellente posizione geografica, tutte le destinazioni in Istria – dal nord al sud della penisola – sono raggiungibili in 40 minuti di auto.

Per il lotto è stata redatta la documentazione progettuale per la costruzione di una villa con piscina, e il permesso di costruzione è già stato rilasciato, il che consente l'inizio immediato dei lavori.

C'è la possibilità di acquistare anche un ulteriore lotto adiacente a questo.

Per ulteriori informazioni, si prega di contattare:
Azra
+385 91 611 5706
+385 98 420 885
azra@almadominvest.com

  • REI ID : 83370
  • ID interno dell'agenzia : 25166
  • Data di pubblicazione : 07.11.2025.
  • Data di aggiornamento : 14.04.2026.
  • Numero di visualizzazioni : 305
  • Segnala un annuncio

Tutti i dati e le immagini su questi siti Web sono presentati solo a scopo informativo, prima di qualsiasi conclusione o attività basata sui dati di queste pagine, tutte le informazioni devono essere verificate con l'inserzionista.

CONTATTA UN AGENTE