Vendita - appartamento in un nuovo progetto residenziale, Pula, Veli Vrh!

Superficie di immobile

54.25 m2

Numero di camere da letto

2

Numero di bagni

1

Piano

Pianterreno

Pola
152.000 €
2.802 €/m2
  • Distanza dal centro : 2000 m
  • Distanza dal mare : 1000 m
  • Numero di piani : 5
  • Numero di camere da letto : 2
  • Numero di camere : 2
  • Numero di bagni : 1
  • Parcheggio : Si
  • Anno di costruzione : 2026
  • Efficienza energetica : Non specificato

DESCRIZIONE DELL'IMMOBILE

Nuovo in offerta!

In vendita un appartamento in un nuovo progetto residenziale in ottima posizione.

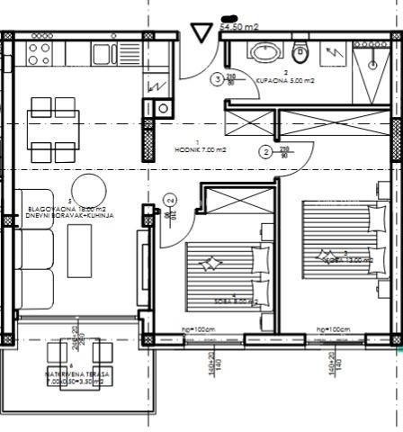
L'appartamento si trova al piano terra ed è composto da un corridoio, 2 camere da letto, un bagno, un soggiorno con cucina e sala da pranzo, e una terrazza.

L'appartamento include 1 posto auto con un supplemento di 18.000 €, e c'è anche la possibilità di acquistare un ripostiglio.

Il completamento della costruzione è previsto per la fine del 2027.

Accettiamo prenotazioni.

Per ulteriori informazioni, si prega di contattare:

Azra
+385 91 611 5706
+385 98 420 885
azra@almadominvest.com

  • REI ID : 91481
  • ID interno dell'agenzia : 28295
  • Data di pubblicazione : 09.04.2026.
  • Data di aggiornamento : 08.04.2026.
  • Numero di visualizzazioni : 25
  • Segnala un annuncio

Tutti i dati e le immagini su questi siti Web sono presentati solo a scopo informativo, prima di qualsiasi conclusione o attività basata sui dati di queste pagine, tutte le informazioni devono essere verificate con l'inserzionista.

Non hai trovato quello che stavi cercando? Vedi tutte le Appartamenti Pula nella nostra offerta!

CONTATTA UN AGENTE