Terreno edificabile Sveti Lovreč, 964m2

Superficie di particela

964 m2

Distanza dal centro

17000 m

Distanza dal mare

17000 m

San Lorenzo del Pasenatico
149.000 €
155 €/m2

DESCRIZIONE DELL'IMMOBILE

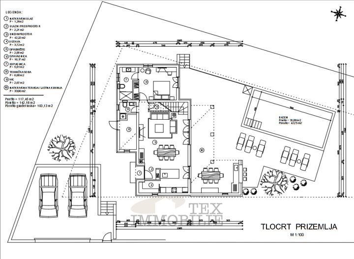
Terreno edificabile in vendita nell'idilliaca Istria, situato in un luogo pittoresco vicino a Svetog Lovreč. Questo bellissimo appezzamento di terreno viene fornito con la documentazione completa del progetto, la licenza edilizia e il piano regolatore per una villa di lusso per le vacanze.
Situata in una posizione ideale per la pace e la privacy nella natura, questa proprietà offre un facile accesso a tutti i servizi necessari e alle attrazioni che l'Istria offre.
Pronto per la costruzione immediata, il terreno consente una rapida realizzazione dei vostri progetti. Il design architettonico di stile moderno garantisce comfort e lusso, perfettamente adattati ai vostri desideri.
Per maggiori dettagli e per visionare la documentazione completa, non esitate a contattarci.



Tex Immobilie
Agent s licencom
Mob: 0989826003
Tel: 0994705455
E-mail: info@tex-immobilie.com
www.tex-immobilie.com

  • REI ID : 80106
  • ID interno dell'agenzia : XML-3033-276226
  • Data di pubblicazione : 11.08.2025.
  • Data di aggiornamento : 11.08.2025.
  • Numero di visualizzazioni : 404
  • Segnala un annuncio

Tutti i dati e le immagini su questi siti Web sono presentati solo a scopo informativo, prima di qualsiasi conclusione o attività basata sui dati di queste pagine, tutte le informazioni devono essere verificate con l'inserzionista.

CONTATTA UN AGENTE