Terreno edificabile con permesso per 4 appartamenti – 900 m dal mare

Superficie di particela

2347 m2

Distanza dal centro

1500 m

Distanza dal mare

900 m

Parenzo
750.000 €
320 €/m2

DESCRIZIONE DELL'IMMOBILE

Istria, Parenzo (Poreč)

Terreno edificabile esclusivo con permesso valido – a 900 m dal mare

In una delle zone più richieste nei dintorni di Parenzo, a soli 900 metri dal mare e dalle spiagge curate, si trova questo terreno edificabile estremamente interessante con permesso di costruzione valido per la realizzazione di un edificio residenziale moderno con 4 unità abitative.

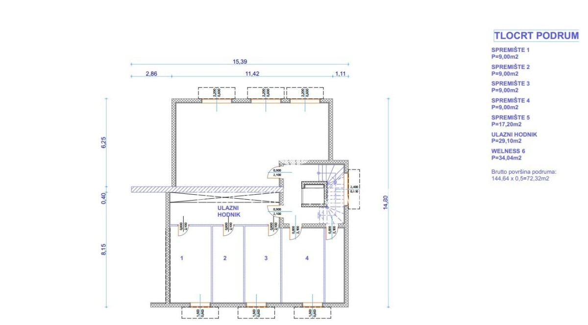
Il progetto prevede un seminterrato con ripostigli, piano terra e primo piano, con appartamenti di superficie compresa tra 57 m² e 85 m² e ascensore, aumentando così il comfort e il valore di mercato. È inoltre possibile modificare il progetto in 6 unità abitative, incrementando ulteriormente il potenziale d’investimento.

Il terreno ha una forma regolare e un accesso agevole, permettendo una realizzazione rapida ed efficiente della costruzione. Tutte le infrastrutture necessarie – elettricità, acqua, fognatura e internet in fibra ottica – si trovano direttamente accanto al terreno.

Gli oneri di urbanizzazione sono già stati pagati, consentendo un avvio più rapido dei lavori.

Questa proprietà rappresenta un’ottima opportunità sia per investitori che cercano un investimento sicuro e redditizio nel settore turistico o residenziale, sia per chi desidera realizzare un progetto in una posizione privilegiata vicino al mare.

La combinazione di una posizione tranquilla, la vicinanza a tutti i servizi e il permesso già ottenuto rendono questo terreno un’opportunità rara sul mercato.

Non perdere questa opportunità unica!

  • REI ID : 78022
  • ID interno dell'agenzia : 2128
  • Data di pubblicazione : 28.06.2025.
  • Data di aggiornamento : 02.04.2026.
  • Numero di visualizzazioni : 286
  • Segnala un annuncio

Tutti i dati e le immagini su questi siti Web sono presentati solo a scopo informativo, prima di qualsiasi conclusione o attività basata sui dati di queste pagine, tutte le informazioni devono essere verificate con l'inserzionista.

CONTATTA UN AGENTE