Poreč, dintorni, Moderna villa con piscina ai margini del villaggio, 17 km dal mare

Superficie di immobile

170 m2

Superficie di particela

968 m2

Numero di camere da letto

3

Numero di bagni

3

Parenzo
725.000 €
4.265 €/m2
  • Distanza dal centro : 3500 m
  • Distanza dal mare : 17000 m
  • Numero di piani : 2
  • Numero di camere da letto : 3
  • Numero di camere : 4
  • Numero di bagni : 3
  • Parcheggio : Si
  • Aria condizionata : Si
  • Piscina : Si
  • Anno di costruzione : 2025
  • Efficienza energetica : Non specificato

DESCRIZIONE DELL'IMMOBILE

Al confine della zona edificabile, in un ambiente tranquillo, si sta costruendo questa villa attraente che offrirà un connubio di architettura moderna, materiali di alta qualità e un'atmosfera accogliente.

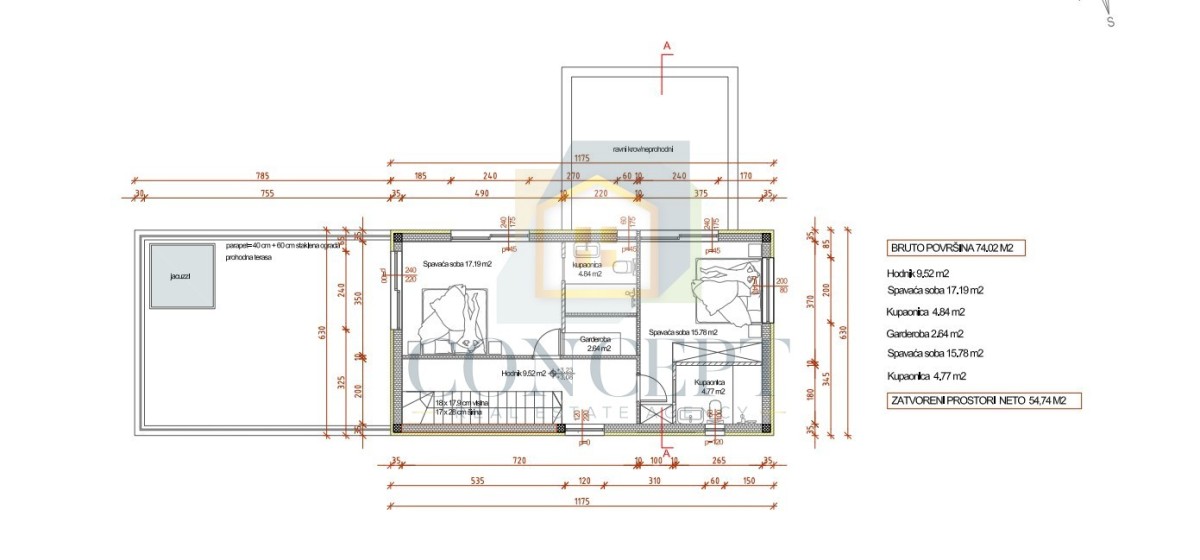
Su un terreno di 968 m² è prevista la costruzione di una villa con superficie lorda di 230 m² e superficie netta di 170 m².

Al piano terra sono previsti un ripostiglio, una lavanderia, un bagno, una camera da letto con bagno privato, una spaziosa cucina e sala da pranzo, oltre a un soggiorno. Dal soggiorno si accede a una terrazza coperta con cucina estiva e un ulteriore bagno.

Al primo piano si trova una camera da letto con bagno privato e la camera da letto principale (master) con bagno, cabina armadio e una spaziosa terrazza che offre una vista sul paesaggio naturale.

Nel giardino è previsto un piscina di 40 m², accanto alla quale sarà collocato uno spazio appositamente arredato per socializzare e rilassarsi attorno al fuoco, il cosiddetto "fire pit".

L'intera proprietà sarà recintata da un muro, e all'interno del giardino sarà garantito uno spazio per il parcheggio di tre o quattro auto.

La villa sarà venduta con la formula "chiavi in mano" (senza mobili). I mobili mostrati nelle visualizzazioni possono essere offerti con un supplemento.

Per ulteriori informazioni e per organizzare una visita, non esitate a contattarci.

  • REI ID : 80386
  • ID interno dell'agenzia : 337
  • Data di pubblicazione : 16.08.2025.
  • Data di aggiornamento : 30.01.2026.
  • Numero di visualizzazioni : 318
  • Segnala un annuncio

Tutti i dati e le immagini su questi siti Web sono presentati solo a scopo informativo, prima di qualsiasi conclusione o attività basata sui dati di queste pagine, tutte le informazioni devono essere verificate con l'inserzionista.

Non hai trovato quello che stavi cercando? Vedi tutte le Case Poreč nella nostra offerta!

CONTATTA UN AGENTE