Casa

Superficie di immobile

283 m2

Superficie di particela

0 m2

Numero di camere da letto

4

Numero di bagni

4

Albona
772.000 €
2.728 €/m2
  • Distanza dal centro : 5000 m
  • Distanza dal mare : 9000 m
  • Numero di piani : 2
  • Numero di camere da letto : 4
  • Numero di camere : 4
  • Numero di bagni : 4
  • Parcheggio : Si
  • Aria condizionata : Si
  • Anno di costruzione : 2025
  • Efficienza energetica : A+

DESCRIZIONE DELL'IMMOBILE

Vendiamo ville indipendenti con piscina in un nuovo progetto residenziale vicino a Labin.

Il progetto comprende 5 ville di lusso, ciascuna composta da piano terra e primo piano.

Al piano terra si trova una moderna zona giorno con concetto open space, comprendente cucina, zona pranzo e soggiorno, che contribuisce all'armonia e alla funzionalità. Al piano terra si trovano anche i ripostigli (interno ed esterno), una stanza per sauna/fitness e l'accesso a due terrazze coperte. Lo spazio esterno, oltre alle terrazze coperte e al ripostiglio nell'edificio ausiliario, include una piscina con una superficie totale di 48 m², suddivisa in una parte poco profonda per bambini e una parte più profonda.

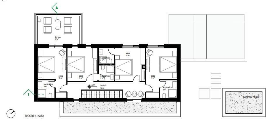
Al primo piano si trovano un corridoio e 4 camere da letto, ciascuna con bagno privato.
Le camere sono orientate a nord-ovest, e una di esse ha accesso a una terrazza sul tetto di 17 m².

La superficie interna netta della Casa D è di 176 m².

Le ville sono progettate con sistemi di climatizzazione inverter per il controllo della temperatura, riscaldamento a pavimento con sistema fan-coil per un maggiore comfort e l'installazione di pannelli solari per ridurre il consumo energetico.

Le ville si trovano nelle prime fasi di costruzione, offrendo la possibilità di scegliere i materiali finali in accordo.

La vicinanza a tutti i servizi necessari, come negozi, scuole, uffici postali, centri sanitari, impianti sportivi e ristoranti, rende questa posizione una scelta eccellente per chi è interessato agli affitti turistici, consentendo un più rapido ritorno sull'investimento.

Casa D

Superficie totale del lotto: 2.365 m²
Giardino paesaggistico: 590 m², di cui 460 m² aree verdi e 130 m² terrazze esterne pavimentate
Parcheggio: 74 m² (due posti auto)

Data di completamento: Giugno 2025

Per ulteriori informazioni, contattare:

Azra
+385 91 611 5706
+385 98 420 885
azra@almadominvest.com

  • REI ID : 91812
  • ID interno dell'agenzia : 28420
  • Data di pubblicazione : 13.04.2026.
  • Data di aggiornamento : 12.04.2026.
  • Numero di visualizzazioni : 31
  • Segnala un annuncio

Tutti i dati e le immagini su questi siti Web sono presentati solo a scopo informativo, prima di qualsiasi conclusione o attività basata sui dati di queste pagine, tutte le informazioni devono essere verificate con l'inserzionista.

CONTATTA UN AGENTE