Appartamento di nuova costruzione con due posti auto a Umag - Umago

Superficie di immobile

68 m2

Numero di camere da letto

2

Numero di bagni

2

Piano

1

Umago
270.000 €
3.971 €/m2
  • Distanza dal centro : 800 m
  • Distanza dal mare : 800 m
  • Numero di piani : 3
  • Numero di camere da letto : 2
  • Numero di camere : 3
  • Numero di bagni : 2
  • Parcheggio : Si
  • Box auto : Si
  • Ascensore : Si
  • Aria condizionata : Si
  • Anno di costruzione : 2025
  • Efficienza energetica : A

DESCRIZIONE DELL'IMMOBILE

Appartamento con due posti auto in un moderno edificio di nuova costruzione a Umag - Umago

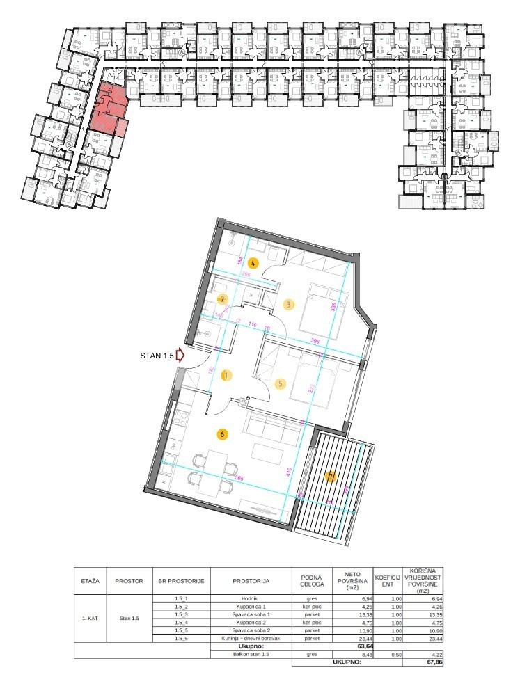
In vendita un appartamento con due posti auto in un moderno edificio di nuova costruzione a Umago. La superficie netta utile dell'appartamento è di 67,86 m². L'appartamento si trova al primo piano di un edificio residenziale ed è composto da soggiorno e cucina, 2 camere da letto, 2 bagni e terrazza. Dispone di un ripostiglio di 3,02 m² e di due posti auto esterni.

L'edificio residenziale è interamente progettato con struttura monolitica in cemento armato, pannelli interpiano. Le pareti divisorie interne degli appartamenti sono realizzate in cartongesso a doppio spessore con isolamento termico e acustico aggiuntivo. Il rivestimento della facciata è realizzato con il sistema ETICS con isolamento termico di 10 cm di spessore. Le aperture della facciata esterna sono chiuse con infissi in PVC multicamera di alta qualità di ultima generazione color antracite. Le camere da letto sono dotate di tapparelle elettriche. Tutti gli appartamenti sono dotati di sistemi di riscaldamento e raffrescamento multisplit di alta qualità, le cui caratteristiche operative garantiscono il massimo comfort e risparmio energetico.

Ogni appartamento è dotato di un proprio contatore di acqua ed elettricità. L'acqua sanitaria è prodotta da uno scaldabagno elettrico a basso consumo. Tutti gli appartamenti sono dotati di telefono, antenna, TV e connessione internet, e ogni appartamento è dotato di citofono con videocitofono. Le camere da letto e il soggiorno sono dotati di pavimenti in parquet, mentre i corridoi e gli ingressi sono piastrellati. Materiali di altissima qualità e attrezzature integrate rendono ogni appartamento estremamente confortevole sia da vivere che da affittare per scopi turistici. Il completamento dei lavori è previsto per luglio 2025.

L'appartamento si trova a 800 m dal mare e dal centro di Umago.

www.leones-realestate.hr

  • REI ID : 79482
  • ID interno dell'agenzia : 708
  • Data di pubblicazione : 24.07.2025.
  • Data di aggiornamento : 23.07.2025.
  • Numero di visualizzazioni : 378
  • Segnala un annuncio

Tutti i dati e le immagini su questi siti Web sono presentati solo a scopo informativo, prima di qualsiasi conclusione o attività basata sui dati di queste pagine, tutte le informazioni devono essere verificate con l'inserzionista.

Non hai trovato quello che stavi cercando? Vedi tutte le Appartamenti Umag nella nostra offerta!

CONTATTA UN AGENTE