APPARTAMENTO AL PIANO TERRA CON AMPIO GIARDINO - TAR - nella fase di costruzione

Superficie di immobile

77 m2

Numero di camere da letto

2

Numero di bagni

1

Piano

Pianterreno

Torre-Abrega, Tar
269.500 €
3.500 €/m2
  • Superficie di particela : 240 m2
  • Distanza dal centro : 1000 m
  • Distanza dal mare : 3000 m
  • Numero di piani : 1
  • Numero di camere da letto : 2
  • Numero di camere : 2
  • Numero di bagni : 1
  • Parcheggio : Si
  • Cantina : Si
  • Aria condizionata : Si
  • Anno di costruzione : 2024
  • Efficienza energetica : Non specificato

DESCRIZIONE DELL'IMMOBILE

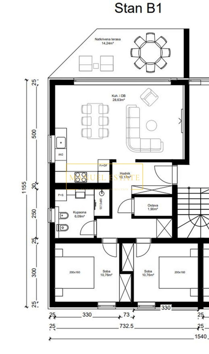
L'appartamento al piano terra (B1) della superficie abitabile complessiva di 77 mq sarà composto da ingresso, ripostiglio, due camere da letto, bagno, cucina + pranzo + soggiorno disposto secondo il principio dell'open-space; il soggiorno avrà pareti di vetro e accesso ad una terrazza coperta e ad un ampio giardino di 240 m2. Riscaldamento/raffreddamento con aria condizionata. Riscaldamento a pavimento. Porte d'ingresso antieffrazione e resistenti al fuoco. Bagno attrezzato con sanitari. I clienti possono scegliere autonomamente la ceramica. Viene venduto non arredato. Due posti auto.

Appartamento bilocale situato in una palazzina residenziale di complessivi otto appartamenti. Si troverà in una posizione tranquilla, immersa nella natura, a circa 1 km dal centro di Tar, a circa 7 km da Cittanova e Parenzo, e a circa 3 km dal mare e dalle prime spiagge. Tutti i servizi necessari come negozi, banche, uffici postali, scuole, ristoranti si trovano nelle immediate vicinanze. Per la sua posizione, l'appartamento è perfetto come nuova casa, luogo di vacanza o come buona opportunità e investimento per una locazione turistica.

Inizio costruzione 01/2024, completamento 12/2024.
Prezzo: 3.500 EUR/m2 - 269.500 EUR
Per tutte le altre informazioni non esitate a contattarci.

Nota: Se l'acquirente, dopo aver visionato (accesso fisico/visita personale) l'immobile in questione presso l'agenzia "Manuel Estate d.o.o." presa la decisione definitiva di acquistarlo e concludere la vendita con il proprietario dell'immobile, questi è tenuto a corrispondere all'agenzia una commissione di intermediazione pari al 3% + IVA del prezzo totale di acquisto.

  • REI ID : 65730
  • ID interno dell'agenzia : 11225
  • Data di pubblicazione : 14.08.2024.
  • Data di aggiornamento : 13.08.2024.
  • Numero di visualizzazioni : 920
  • Segnala un annuncio

Tutti i dati e le immagini su questi siti Web sono presentati solo a scopo informativo, prima di qualsiasi conclusione o attività basata sui dati di queste pagine, tutte le informazioni devono essere verificate con l'inserzionista.

CONTATTA UN AGENTE