Prodaja stanova u novom stambenom kompleksu, Štinjan! 14A

Površina objekta

61.29 m2

Broj spavaćih soba

2

Broj kupaonica

1

Kat

Prizemlje

Pula
212.625 €
3.469 €/m2
  • Udaljenost od centra : 1000 m
  • Udaljenost od mora : 1200 m
  • Broj katova : 3
  • Broj spavaćih soba : 2
  • Broj soba : 2
  • Broj kupaonica : 1
  • Klima uređaj : Da
  • Energetska učinkovitost : A+

OPIS NEKRETNINE

Prodajemo stan u novom stambenom kompleksu, u Štinjanu. Kompleks se sastoji od 19 stambenih dvokatnih zgrade. Lokacija novog stambenog kompleksa je odlična, samo kilometar udaljena od centra Štinjana i u neposrednoj blizini osnovne škole, dječjeg vrtića, gradske plaže Hidrobaza, ljekarne te na svega četiri kilometra od centra grada Pule i tri kilometra od centra naselja Fažana.
Prilaz stambenom kompleksu osiguran je s asfaltirane površine, unutar koje će se nalaziti sva potrebna infrastruktura (struja, voda, kanalizacija).

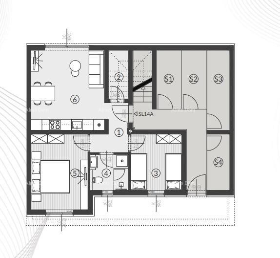
Stan oznake 14A, unutarnje površine 49.58m2, nalazi se u prizemlju zgrade i sastoji se od: hodnika, dnevnog boravka s kuhinjom i blagovaonom, 2 spavaće sobe, kupaone, spremišta i vrta.

Ono što čini ovaj projekt posebnim je arhitektonsko rješenje fasade stambenih građevina, te zeleni krovovi koji se pojavljuju na fasadi.

Svakoj stambenoj jedinici osiguran je potreban broj parkirnih mjesta prema urbanističkom planu grada Pule. Svakom parkirnom mjestu projektiran je budući spoj na elektroenergetsku mrežu s ciljem spajanja punjača za električna vozila.

Ovom stanu pripada 1 parkirno mjesto i spremište- uključeno u cijenu.

Primamo rezervacije!

Za dodatne informacije, molimo kontaktirajte:


Azra
+385 91 611 5706
+385 98 420 885
azra@almadominvest.com

  • REI ID : 91398
  • Interni ID agencije : 28179
  • Datum objave : 07.04.2026.
  • Datum ažuriranja : 06.04.2026.
  • Broj pregleda : 36
  • Prijavi oglas

Svi podaci i slike na ovim internetskim stranicama prikazani su samo za informativne svrhe, prije bilo kakvog zaključka ili aktivnosti temeljenima na podacima sa ovih stranica, sve informacije je potrebno provjeriti kod oglašivača.

Niste pronašli traženo? Pogledajte sve Stanovi Pula u našoj ponudi!

KONTAKTIRAJTE AGENTA