Prodaja - građevinsko zemljište okruženo prirodom, blizina Žminja! V2

Površina parcele

1100 m2

Udaljenost od centra

8200 m

Udaljenost od mora

28000 m

Žminj
73.650 €
67 €/m2

OPIS NEKRETNINE

Na prodaju je građevinsko zemljište s projektom za izgradnju moderne vile, smješteno u srcu Istre, između slikovitih mjesta Gračišće, Lindar i Žminj. Lokacija se nalazi na blagom brežuljku okruženom hrastovom šumom, idealna za sve koji traže mir, prirodu i privatnost.

Osnovne informacije:

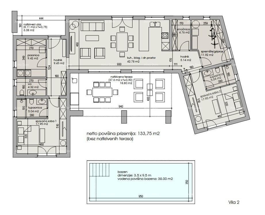
Površina zemljišta: 1.100 m²

Planirana vila: 129 m² stambenog prostora, 38 m² natkrivene terase i 8 m² natkrivenog ulaza

Katnost: prizemnica
Parkirna mjesta: 2


Projektom je predviđena moderna mediteranska vila koja spaja suvremenu arhitekturu i tradicionalne materijale poput kamena, drva i betona. Velike staklene stijene povezuju interijer s prirodnim okolišem, dok prostrane terase proširuju dnevni boravak prema bazenu i vrtu.

Prizemlje: otvoreni koncept dnevnog boravka, kuhinje i blagovaonice, tehnička prostorija s toaletom, spavaća soba s vlastitom kupaonicom te izlaz na natkrivenu terasu i bazen.

Značajke:

-Grijanje i hlađenje putem dizalice topline (podno grijanje u kupaonicama, fan-coil u ostalim prostorijama)
-Kamin u dnevnom boravku
-Bazen površine 38 m² s kamenim rubom, mozaik oblogom i sunčalištem od prirodnog kamena

Udaljenost od mora: 28 km

Projekt je u potpunosti izrađen i spreman za gradnju, što omogućuje brz početak realizacije bez dodatnih projektnih troškova. Idealno za investitore ili obitelji koje žele kreirati vlastitu oazu mira u autentičnom istarskom okruženju.


Za dodatne informacije, molimo kontaktirajte:
Azra
+385 91 611 5706
+385 98 420 885
azra@almadominvest.com

  • REI ID : 85738
  • Interni ID agencije : 26077
  • Datum objave : 27.12.2025.
  • Datum ažuriranja : 13.04.2026.
  • Broj pregleda : 161
  • Prijavi oglas

Svi podaci i slike na ovim internetskim stranicama prikazani su samo za informativne svrhe, prije bilo kakvog zaključka ili aktivnosti temeljenima na podacima sa ovih stranica, sve informacije je potrebno provjeriti kod oglašivača.

KONTAKTIRAJTE AGENTA