Poreč - Moderna dvojna kuća na traženoj lokaciji - u izgradnji

Površina objekta

126.34 m2

Površina parcele

0 m2

Broj spavaćih soba

3

Broj kupaonica

3

Poreč
450.000 €
3.562 €/m2
  • Udaljenost od centra : 2000 m
  • Udaljenost od mora : 2000 m
  • Broj katova : 3
  • Broj spavaćih soba : 3
  • Broj soba : 4
  • Broj kupaonica : 3
  • Broj wca : 1
  • Parking : Da
  • Klima uređaj : Da
  • Godina izgradnje : 2025
  • Energetska učinkovitost : Nije određeno

OPIS NEKRETNINE

Istra, Poreč

Prodaje se moderna dvojna kuća na traženoj lokaciji u Poreču nadomak svih sadržaja potrebnih za život.
Kuća broj 3 je ukupne površine 126.34 m2 i proteže se na tri etaže.
U prizemlju se nalazi ulazni hodnik, WC, utility/vešeraj, ostava, prostrani dnevni boravak s kuhinjom i blagovaonicom po open space konceptu, koji ima izlaz na natkrivenu terasu i dvorište.
Na prvom katu se nalazi hodnik, dvije spavaće sobe, svaka sa svojom vlastitom kupaonicom, dok jedna spavaća ima garderobu/walk-in ormar.
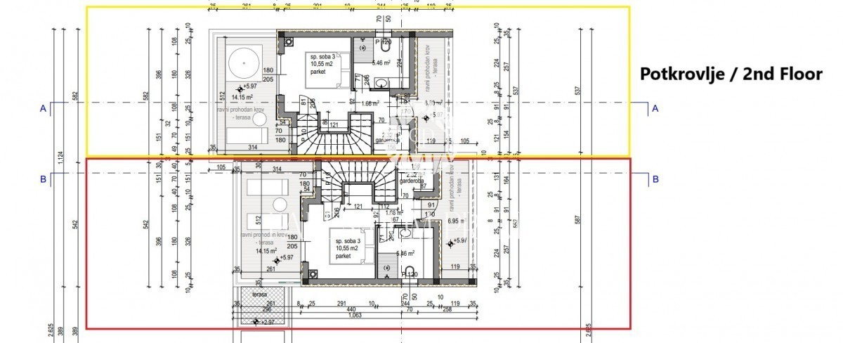
U potkrovlju se nalazi master bedroom, garderoba, kupaonica te dvije terase, jedna sa priključkom za Jacuzzi.
Kuća će biti građena sa kvalitetnim matrijalima, pločicama i podnim oblogama, zidovi od blok cigle (25 cm), toplinska izolacija (12 cm), PVC stolarija s trostrukim staklima, roletama i komarnicima.
Podno grijanje i klima uređaji u svim prostorijama, te solarni paneli za dodatnu energetsku učinkovitost.
Ispred kuće će se nalaziti dva parkirna mjesta.
Planirani završetak gradnje po sistemu ključ u ruke je 06/2026. godine.
Kupac ne plaća porez na nekretninu.
Zbog svoje iznimne pozicije i blizine centra te svih potrebnih sadržaja ova nekretnina nudi savršeno rješenje za prostran i funkcionalan dom ili kao investicija u turističke svrhe.

  • REI ID : 74920
  • Interni ID agencije : 2095
  • Datum objave : 11.04.2025.
  • Datum ažuriranja : 18.12.2025.
  • Broj pregleda : 494
  • Prijavi oglas

Svi podaci i slike na ovim internetskim stranicama prikazani su samo za informativne svrhe, prije bilo kakvog zaključka ili aktivnosti temeljenima na podacima sa ovih stranica, sve informacije je potrebno provjeriti kod oglašivača.

Niste pronašli traženo? Pogledajte sve Kuće Poreč u našoj ponudi!

KONTAKTIRAJTE AGENTA