Marčana okolica,rustikalna Istarska kamena kuća s bazenom

Površina objekta

200 m2

Površina parcele

250 m2

Broj spavaćih soba

3

Broj kupaonica

2

Marčana
375.000 €
1.875 €/m2
  • Udaljenost od centra : 300 m
  • Udaljenost od mora : 1700 m
  • Broj katova : 1
  • Broj spavaćih soba : 3
  • Broj soba : 3
  • Broj kupaonica : 2
  • Broj wca : 3
  • Parking : Da
  • Bazen : Da
  • Godina izgradnje : 1915
  • Godina zadnje adaptacije : 2020
  • Energetska učinkovitost : Nije određeno

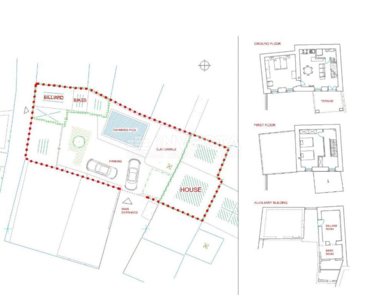
OPIS NEKRETNINE

Na prodaju je prekrasna rustikalna kamena istarska kuća s bazenom na dvije etaže i dodatnim apartmanom na uređenoj parceli , renoviran 2020. godine, smještenu u mirnom okruženju malog mjesta u okolici Marčane u pravcu mora, na samo 1,7 km od morske obale i plaža.
U prizemlju kuće nalazi se dnevni boravak s opremljenom kuhinjom i blagovaonicom, opremljeni WC s tušem i udobnom spavaćom sobom.
Na prvom katu nalaze se druga opremljen prostrana spavaća soba.
Cijela kuća je klimatizirana osiguravajući udobnost tijekom cijele godine. U donjem dijelu dvorišta, imate zaseban apartman s vlastitom spavaćom sobom, kuhinjom i kupaonicom, idealan za goste. Osim toga, tu je i prostorija s biljarom, ostava za bicikle, te strojarnica bazena. U sredini imanja nalazi se predivan bazen s sunčalištem. Kuća ima osiguran parking za dva automobila, kategorizirana je za iznajmljivanje tijekom ljetne sezone, prodaje se u potpunosti namještena, spremna za vaše useljenje.

Detaljan raspored prizemlja kuće:
Ulazni hodnik i stubište.
Kuhinja s dnevnim boravkom i blagovaonicom: opremljen prostor.
Spavaća soba 1: Udobna i prostrana opremljena spavaća soba.
Kupaona: kompletno opremljen kupaonica.
Vanjska natkrivena terasa: Prostrana terasa idealna za opuštanje na otvorenom.

Detaljan raspored prvog kata kuće:
Stubište i hodnik koji pruža pristup spavaćoj sobi.
Spavaća soba 2: Udobna i prostrana opremljena spavaća soba.

Detaljan raspored apartmana prizemlje unutar posjeda:
Kuhinja s dnevni boravkom i blagovanom: opremljena prostorija.
Spavaća soba: opremljen prostor.
Kupaona: kompletno opremljen kupaonica.

Prizemlje dodatne prostorije:
Prostorija za biljar.
Prostorija tuš i wc.
Zasebna prostorija strojarnice.
Natkrivena ostava za bicikle.
Uz sam apartman unutar posjeda nalaze se tri prostora, prvi je opremljen biljarskim stolom, drugi prostor koristi se kao spremište koji ima pripremu za tuš i WC i svoju septičku koje je direktno spojena sistemom preljeva u glavnu septičku jamu i izoliran prostor strojarnice bazena, opremljen elektrolizom kompletni sustav je automatiziran.
Kompletna renovacija: obuhvaća podove, zidove, odvode, instalacije za struju i vodu,

Renovacija kuće:
Kompletna renovacija: Obuhvaća novu fasadu, krovište, podove, zidove, plafone, odvode, instalacije za struju i vodu, te odvodnju.
Unutarnja oprema: opremljena kuhinja, dnevni boravak i blagovaonica, kupaonica te dvije spavaće sobe.

Renovacija apartmana:
Kompletna renovacija: Obuhvaća novu fasadu, krovište, podove, zidove, plafone, odvode, instalacije za struju i vodu, te odvodnju.
Unutarnja oprema: opremljena kuhinja, kupaonica te spavaća sobe.
Bazen s strojarnicom (elektroliza bazena).

Ključne značajke:
Lokacija: Kuća se nalazi u malom naselju, kombinirajući tradicionalni rustikalni stil s modernim sadržajima.
Plaže: Udaljenost od mora i prekrasnih plaža iznosi 1.7 km.
Pogodnosti: Kuća ima vlastita dva parkirna mjesto unutar dvorišta kuće.
Grijanje/Hlađenje: Opremljena je s klimatskim jedinicama po svim prostorijama, te unutar kuće imate funkcionalan dimnjak za postavljanje peći.
Priključci: Kuća ima vlastitu septičku jamu, upojni bunar za vode bazena, struju i vodu.
Oprema: Nekretnina se prodaje s opremljenom kuhinjom, kupaonicom i s kompletnim namještajem unutar i izvan kuće , dvorišta i apartmana.

Prednosti lokacije:
Lokacija kuće idealna je za sve one koji traže mir i privatnost, kao i za one koji žele izbjeći gužve, ali ipak biti u neposrednoj blizini svih sadržaja potrebnih za svakodnevni život. Općina Marčana poznata je po svojim prekrasnim plažama koje zadovoljavaju raznovrsne ukuse posjetitelja. Okolica je pogodna za jahanje, šetnje, brdski biciklizam, plivanje, ronjenje, vožnju barkom ili brodom.

Zaključak:
Ova nekretnina predstavlja izvrsnu priliku za stanovanje ili kao investicija za turistički najam, zahvaljujući svojoj atraktivnoj lokaciji i visokoj kvaliteti opreme. Blizina plaža, prirode i svih važnih sadržaja čini ovu kuću idealnim izborom za obiteljski život ili profitabilni najam.

Za dodatne informacije ili dogovor oko razgledavanja slobodno nam se obratite!


Franko Rojnić
Mob: +385 98 829 220
Tel: +385 52 33 00 33
E-mail: franko@investa.hr
www.investa.hr

  • REI ID : 78034
  • Interni ID agencije : XML-3061-273944
  • Datum objave : 28.06.2025.
  • Datum ažuriranja : 25.09.2025.
  • Broj pregleda : 478
  • Prijavi oglas

Svi podaci i slike na ovim internetskim stranicama prikazani su samo za informativne svrhe, prije bilo kakvog zaključka ili aktivnosti temeljenima na podacima sa ovih stranica, sve informacije je potrebno provjeriti kod oglašivača.

KONTAKTIRAJTE AGENTA