Poreč, surroundings - OPPORTUNITY! - modern one-bedroom apartment, 55m2 with a 90m2 garden

Building size

55 m2

Number of bedrooms

1

Number of bathrooms

1

Floor

Ground floor

Poreč
183.000 €
3.327 €/m2
  • Plot size : 90 m2
  • Garden size : 90 m2
  • Distance from see : 5000 m
  • Number of floors : 1
  • Number of bedrooms : 1
  • Number of rooms : 2
  • Number of bathrooms : 1
  • Parking : Yes
  • Year of construction : 2026
  • Energy efficiency : Not specified

REAL ESTATE DESCRIPTION

Istria, Poreč, surroundings

In a quiet and beautiful environment, just 4 km from the center of Poreč and beautiful beaches, there is a modern building with a total of five residential units. This property is an ideal choice for anyone who wants to enjoy a modern way of living with privacy, just a few minutes' drive from Poreč, the sea and beautifully landscaped beaches.

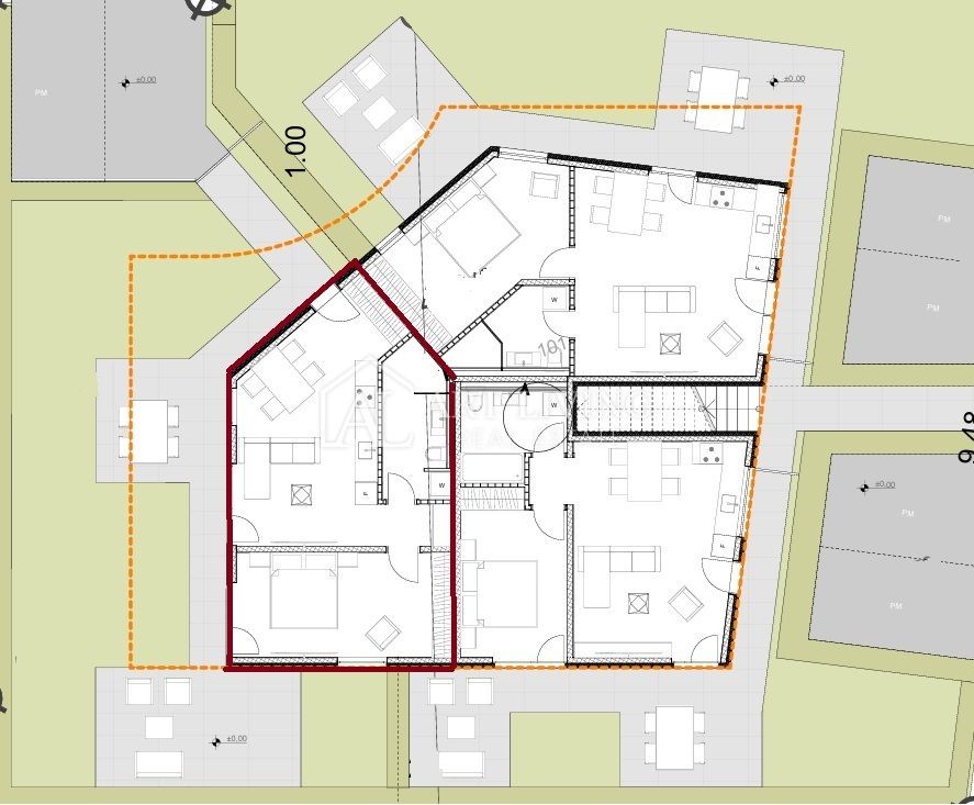
For sale is a ground floor apartment with a total area of ​​55.43 m², which also includes a 90 m² private garden - perfect for relaxation, family gatherings or creating your own green oasis.

The apartment is characterized by a functional layout and plenty of natural light. The central part is made up of a spacious living room with kitchen and dining room with direct access to the garden. There is also a comfortable bedroom, bathroom and a spacious terrace that provides additional space for outdoor living throughout the year.

For complete comfort, multi-split air conditioners for heating and cooling are provided, while the bathroom has electric underfloor heating.

The apartment also has one private parking space in front of the building.

Thanks to its excellent location, quiet neighborhood and proximity to all important amenities, this property represents an excellent opportunity for year-round living, vacation or as an investment for tourist purposes.

Dear clients, it is possible to view the property only with a signed brokerage contract, which is the basis for further actions related to the purchase and sale and the payment of commission, all in accordance with the Real Estate Brokerage Act.

The "ART LIVING REAL ESTATE" agency, as an authorized real estate broker, charges a brokerage fee of 3% + VAT for the brokerage service at the time of concluding the Preliminary Agreement or Purchase Agreement.

NOTE: We are not responsible for any errors in the property descriptions, but we want to be as precise and accurate as possible

AGENCY ID CODE: 1529

Mia Glad
Voditelj ureda
Mob: 091 784 8083
Tel: +385 91 784 80 83
E-mail: office@artliving-realestate.hr
www.artliving-realestate.hr

  • REI ID : 89201
  • Internal agency ID : XML-4260-653234
  • Insert date : 14.02.2026.
  • Aktualisierungsdatum : 18.02.2026.
  • Number of views : 215
  • Report an ad

All data and images on these websites are presented for informational purposes only, before any conclusion or activity based on data from these pages, all information should be checked with the advertiser.

Didn't find what you were looking for? See all Apartments Poreč in our offer!

CONTACT THE AGENT