POREČ, STAN, NOVOGRADNJA SAMO 1.3 KM OD PLAŽE I CENTRA GRADA

Building size

76 m2

Number of bedrooms

0

Number of bathrooms

0

Floor

n/a

Poreč
307.760 €
4.049 €/m2
  • Number of rooms : 3
  • Year of construction : 2025
  • Energy efficiency : Not specified

REAL ESTATE DESCRIPTION

POREČ, APARTMENT, NEW BUILDING ONLY 1.3 KM FROM THE SEA AND BEACH

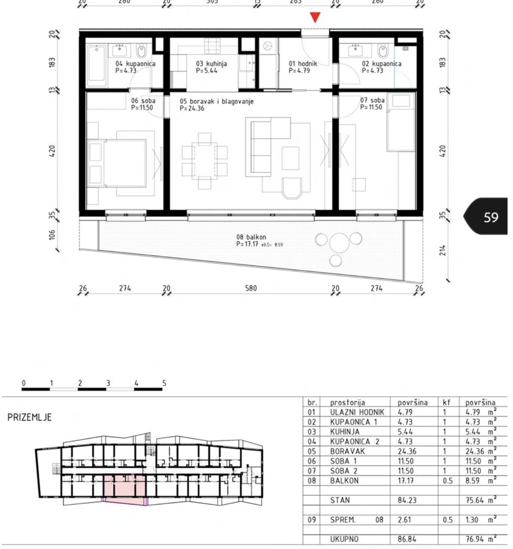
An apartment is for sale in Poreč, 2.5-room (2BR+DB), with a NET usable area of 76.94 m2 (GROSS area 86.63 m2), located on the raised ground floor of a residential building. This apartment offers modern architecture and a high standard of construction.
The apartment consists of an entrance hallway, kitchen with dining area and open-plan living room, two bedrooms, two bathrooms, and a spacious sunny terrace of 17.17 m2.

The apartment also includes a storage room and a parking space in the underground garage.
Situated in a quiet location, the apartment faces southwest, ensuring plenty of natural light and a beautiful view. The proximity to the sea and nature makes this property ideal for those who value living in harmony with the environment, and it is only 1.3 km from the sea and beach.

The construction and materials used are of the highest quality.

Facade system with 15 cm thick stone wool insulation, three-layer Weitler parquet flooring, large-format modern ceramics, Daikin heat pump heating/cooling system with parapet units, elevator, exterior joinery combining wood/aluminum with triple glazing, interior wooden joinery, burglar and fire-resistant doors, balcony railing made of tempered glass 2x10 mm.

Building management and maintenance will be provided by the investor.

Poreč, as a prestigious location on the Adriatic, offers a wealth of cultural and natural attractions, along with proximity to all necessary amenities for everyday life. The apartment is perfectly positioned to enjoy all the benefits this region has to offer.

For more information or to arrange a viewing, feel free to contact us. Take the opportunity to own a property in one of the most desirable locations on the Adriatic.



Kristijan Fraj
Agent s licencom
Mob: +385 95 578 9788
Tel: +385912222276
E-mail: kristijan.fraj@c21.hr
www.c21futura.com

  • REI ID : 89778
  • Internal agency ID : XML-3029-294291
  • Insert date : 25.02.2026.
  • Aktualisierungsdatum : 23.02.2026.
  • Number of views : 110
  • Report an ad

All data and images on these websites are presented for informational purposes only, before any conclusion or activity based on data from these pages, all information should be checked with the advertiser.

Didn't find what you were looking for? See all Apartments Poreč in our offer!

CONTACT THE AGENT