Porec area, near Visnjan - House under construction with a pool, an opportunity to decorate as you wish - under construction

Building size

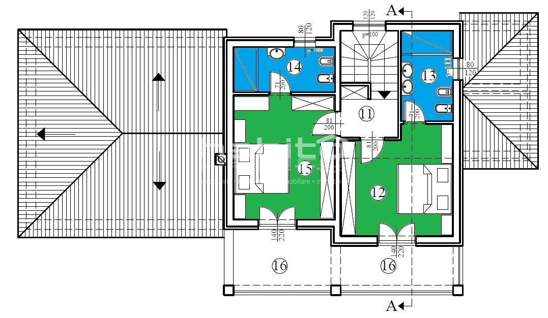
165 m2

Plot size

555 m2

Number of bedrooms

3

Number of bathrooms

3

Višnjan
399.000 €
2.418 €/m2
  • Distance from center : 2500 m
  • Distance from see : 13000 m
  • Number of floors : 1
  • Number of bedrooms : 3
  • Number of rooms : 4
  • Number of bathrooms : 3
  • Parking : Yes
  • Swimming pool : Yes
  • Year of construction : 2025
  • Energy efficiency : Not specified

REAL ESTATE DESCRIPTION

Istria, Poreč area - House with a pool in Roh-bau phase, 165 m²

A quiet location near Višnjan. A family house of 165 m² on a plot of 555 m² with a 7x4 m pool. The house consists of 3 bedrooms, 3 bathrooms, a guest toilet, a storage room, a spacious kitchen with a dining room, and a living room with a fireplace. Enjoy the large covered terraces and a spacious yard.

The house is only 2.5 km from the center of Višnjan and 13 km from the sea and Poreč. There is an option to buy the finished house at a price of 675,000 €. An ideal opportunity to customize the interior to your liking.

  • REI ID : 80145
  • Internal agency ID : 1435
  • Insert date : 12.08.2025.
  • Aktualisierungsdatum : 15.02.2026.
  • Number of views : 485
  • Report an ad

All data and images on these websites are presented for informational purposes only, before any conclusion or activity based on data from these pages, all information should be checked with the advertiser.

CONTACT THE AGENT