Istria, Sisan: Building land with permit and project

Plot size

825 m2

Ližnjan, Šišan
139.000 €
168 €/m2

REAL ESTATE DESCRIPTION

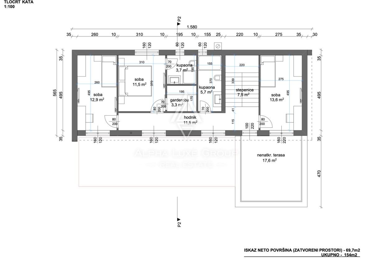
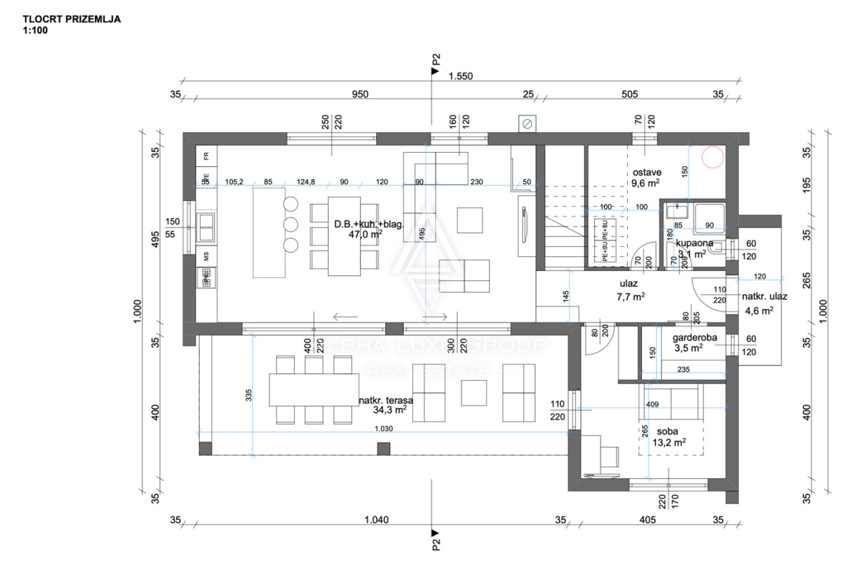
In a sought-after and quiet part of Šišan, this 825 m² building plot presents an outstanding opportunity for buyers looking to develop property in Istria. The land is offered with an approved building permit for a modern two-storey family house with a swimming pool, allowing for a streamlined and efficient start to construction.

A fully completed architectural design is already in place, which significantly reduces preparation time and enables the future owner to proceed with building without additional planning phases. The project has been carefully developed to combine functionality, comfort, and contemporary design, with a strong focus on privacy and quality of living. The planned property is suitable both as a permanent residence and as a high-potential tourist rental investment.

An important advantage is that the building permit becomes legally valid on 16.04., allowing construction to begin almost immediately. This eliminates administrative delays and adds considerable value to the investment, making the entire development process faster and more secure.

Šišan offers a peaceful residential environment while remaining well connected to key destinations such as Pula. The area is known for its authentic Istrian character, natural surroundings, and proximity to beautiful beaches along the southern coast. With easy access to infrastructure, restaurants, and leisure facilities, it provides an ideal balance between tranquility and convenience.

This is an excellent opportunity for investors or private buyers to build a custom home in one of Istria’s increasingly desirable locations.

Your satisfaction is our mission. We look forward to future collaboration!

Property viewings are organized upon prior signing of a brokerage agreement, in accordance with the Real Estate Brokerage Act.

The brokerage commission is 3% + VAT and is payable upon signing the preliminary or final purchase agreement.

https://realestateistria.eu

Built on trust. Defined by results.

Robert Budimir
Agent s licencom
Mob: +385 95 363 1892
Tel: +385 52 204 933
E-mail: robert@alphaluxegroup.com
https://alphaluxegroup.com

Marijana Budimir
Agent s licencom
Mob: +385 95 363 1893
Tel: +385 52 204 933
E-mail: marijana@alphaluxegroup.com
https://alphaluxegroup.com

  • REI ID : 91804
  • Internal agency ID : XML-3135-303057
  • Insert date : 12.04.2026.
  • Aktualisierungsdatum : 12.04.2026.
  • Number of views : 37
  • Report an ad

All data and images on these websites are presented for informational purposes only, before any conclusion or activity based on data from these pages, all information should be checked with the advertiser.

CONTACT THE AGENT