TAR, VABRIGA, ROMANTIČNA KUĆA MODERNOG DIZAJNA, MORE 1 KM

Wohnfläche

120 m2

Grundstücksfläche

589 m2

Anzahl der Schlafzimmer

0

Anzahl der Badezimmer

0

Tar-Vabriga, Tar
665.000 €
5.542 €/m2
  • Anzahl der Zimmer : 4
  • Baujahr : 2021
  • Energieeffizien : Nicht bekannt

OBJEKTBESCHREIBUNG

VABRIGA, NEUBAU, QUALITÄTSVILLA MIT SCHWIMMBAD
Villa in Vabriga, nur 1 km vom Meer entfernt.
Hochwertig gebaute, wunderschön und modern eingerichtete Villa von 120 m2 mit einem 30 m2 großen Swimmingpool auf einem Grundstück von 589 m2.
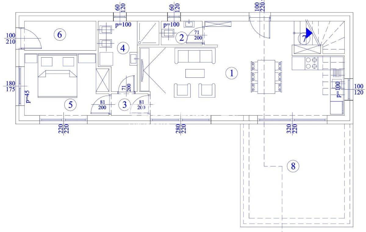
Die Villa besteht aus einer Eingangshalle, Gästetoilette, offenem Raumbereich mit Wohnzimmer, Esszimmer und Küche, Schlafzimmer und Badezimmer.
Im Obergeschoss befinden sich zwei weitere Schlafzimmer, jedes mit eigenem Bad und Zugang zur begrünten Dachterrasse.
Was die Räumlichkeiten dieser modernen Villa schmückt, sind große Glaswände im Erdgeschoss und in den Räumen im ersten Stock mit Blick ins Grüne und auf den Sonnenuntergang.
Die Villa verfügt über die erste Stufe für Fußbodenheizung, die erste Stufe für solare Warmwasserbereitung, Aluminiumtischlerei, dreischichtiges Glas, Klimaanlagen in jedem Zimmer und der Boden ist mit Eichenparkett dekoriert.



Suzana Mužević
Agent s licencom
Mob: +385 98 592 589
Tel: +385912222276
E-mail: suzana.muzevic@c21.hr
www.c21futura.com

  • REI ID : 90990
  • Interne Agentur-ID : XML-3029-105099
  • Einfügen Datum : 31.03.2026.
  • Aktualisierungsdatum : 01.04.2026.
  • Anzahl der Aufrufe : 92
  • Anzeige melden

Alle Daten und Bilder auf diesen Websites werden nur zu Informationszwecken präsentiert, vor jeder Schlussfolgerung oder Aktivität auf der Grundlage von Daten von diesen Seiten sollten alle Informationen mit dem Inserenten überprüft werden.

KONTAKTIEREN SIE DEN AGENTEN