Phänomenales modernes Penthouse mit 4 Terrassen und Whirlpool in Meeresnähe - in Gebäude

Wohnfläche

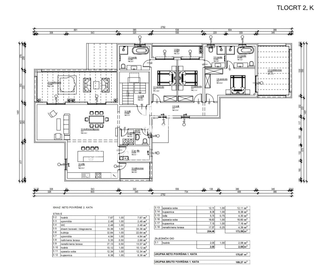
173.60 m2

Anzahl der Schlafzimmer

3

Anzahl der Badezimmer

3

Etage

2

Poreč
675.000 €
3.888 €/m2
  • Entfernung zum Zentrum : 2500 m
  • Entfernung zum Meer : 900 m
  • Anzahl der Etagen : 2
  • Anzahl der Schlafzimmer : 3
  • Anzahl der Zimmer : 4
  • Anzahl der Badezimmer : 3
  • Anzahl der WC : 1
  • Meerblick : Ja
  • Parkplatz : Ja
  • Klimaanlage : Ja
  • Baujahr : 2024
  • Energieeffizien : A

OBJEKTBESCHREIBUNG

Istrien, Poreč – 900 m vom Meer entfernt

In einer ruhigen Siedlung, nahe am Meer und der Stadt Poreč, steht dieses phänomenale Penthouse mit wunderschönem Blick auf das Meer und einer Gesamtfläche von 173,6 m2 zum Verkauf.

Das Penthouse besteht aus einem offenen Wohnzimmer, einer Küche und einem Esszimmer, umgeben von großen Glaswänden, die mit 2 Terrassen verbunden sind, von denen eine über einen Whirlpool und einen freien Blick auf das Meer verfügt. Dieses Luxusapartment verfügt über 3 Schlafzimmer mit eigenem Bad und Terrassen mit einem beruhigenden Blick auf die Stadt und das Meer. Der reichhaltige Inhalt dieser Wohnung bietet außerdem eine zusätzliche Toilette, eine Waschküche, einen Abstellraum und einen eleganten Flur, der alles verbindet.

In der Wohnung wird eine Fußbodenheizung sowie in allen anderen Räumen eine Klimaanlage installiert.

Die für diese Wohnung vorgesehenen 2 Parkplätze befinden sich im Innenhof des Gebäudes.

Die geplante Fertigstellung des Gebäudes wird bis Ende 2025 erwartet.

Die Immobilie unterliegt dem Mehrwertsteuersystem und der Käufer ist von der Steuer beim Immobilienerwerb in Höhe von 3 % befreit.

Bezaubernde Ausblicke aus fast allen Zimmern mit gepflegtem Komfort in einem ruhigen und begehrten Viertel der Stadt Poreč machen diese Wohnung zu einer außergewöhnlichen Gelegenheit auf dem Markt.

  • REI ID : 68254
  • Interne Agentur-ID : 1931
  • Einfügen Datum : 25.10.2024.
  • Aktualisierungsdatum : 13.01.2026.
  • Anzahl der Aufrufe : 759
  • Anzeige melden

Alle Daten und Bilder auf diesen Websites werden nur zu Informationszwecken präsentiert, vor jeder Schlussfolgerung oder Aktivität auf der Grundlage von Daten von diesen Seiten sollten alle Informationen mit dem Inserenten überprüft werden.

Haben Sie nicht gefunden, wonach Sie gesucht haben? Sehen Sie alle Wohnungen Poreč in unserem Angebot!

KONTAKTIEREN SIE DEN AGENTEN