Modernes Reihenhaus und Meerblick in der Nähe von Umag

Wohnfläche

117 m2

Grundstücksfläche

200 m2

Anzahl der Schlafzimmer

3

Anzahl der Badezimmer

2

Umag
390.000 €
3.333 €/m2
  • Entfernung zum Zentrum : 2000 m
  • Entfernung zum Meer : 1500 m
  • Anzahl der Etagen : 3
  • Anzahl der Schlafzimmer : 3
  • Anzahl der Zimmer : 4
  • Anzahl der Badezimmer : 2
  • Meerblick : Ja
  • Parkplatz : Ja
  • Klimaanlage : Ja
  • Baujahr : 2025
  • Energieeffizien : A

OBJEKTBESCHREIBUNG

Modernes Reihenhaus mit Meerblick in der Nähe von Umag

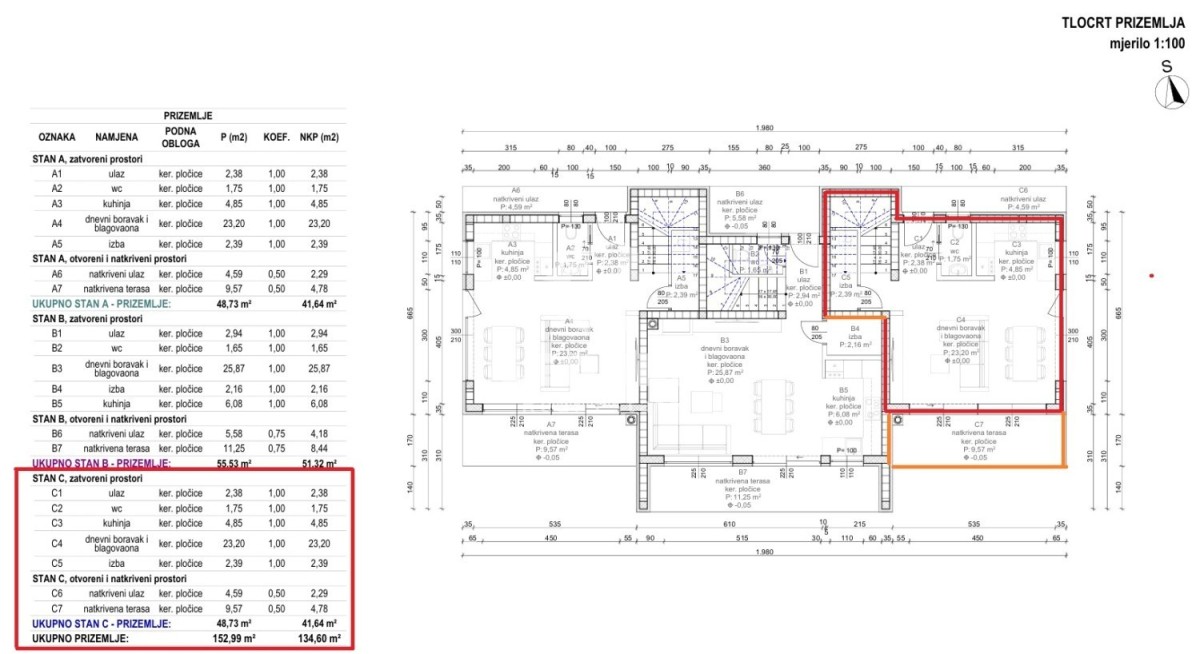
Modernes Reihenhaus zum Verkauf (Einheit C) in der Nähe von Umag. Die Nettonutzfläche des Hauses beträgt 117,38 m2, während die Fläche des Gartens etwa 200 m2 beträgt. Im Erdgeschoss gibt es eine Toilette, eine Speisekammer, eine Küche mit Esszimmer und ein Wohnzimmer mit Zugang zu einer überdachten Terrasse. Im ersten Stock befinden sich 2 Schlafzimmer, eines davon mit Zugang zur überdachten Terrasse und ein Badezimmer. Im zweiten Stock gibt es ein Schlafzimmer mit eigenem Bad und einer großen Terrasse mit Blick auf das Meer.

Für die Heizung ist eine Wärmepumpe vorgesehen, für die Kühlung sorgt eine Klimaanlage.

Die Fassade wird energieeffizient (10 cm Styropor) sein, während die Tischlerei dreifach verglast sein wird. Der Baubeginn ist für Ende 2025 geplant. Das Haus liegt in einer ruhigen Umgebung und eignet sich sowohl zum Wohnen als auch zur Vermietung für touristische Zwecke.

Die Entfernung des Hauses vom Meer und der Stadt Umag beträgt 1,5 km.

www.leones-realestate.hr

  • REI ID : 74510
  • Interne Agentur-ID : 584
  • Einfügen Datum : 26.03.2025.
  • Aktualisierungsdatum : 04.08.2025.
  • Anzahl der Aufrufe : 4244
  • Anzeige melden

Alle Daten und Bilder auf diesen Websites werden nur zu Informationszwecken präsentiert, vor jeder Schlussfolgerung oder Aktivität auf der Grundlage von Daten von diesen Seiten sollten alle Informationen mit dem Inserenten überprüft werden.

Haben Sie nicht gefunden, wonach Sie gesucht haben? Sehen Sie alle Häuser Umag in unserem Angebot!

KONTAKTIEREN SIE DEN AGENTEN