Medulin, eine imposante Villa am Meer mit Dachterrasse

Wohnfläche

417 m2

Grundstücksfläche

814 m2

Anzahl der Schlafzimmer

4

Anzahl der Badezimmer

4

Medulin
1.350.000 €
3.237 €/m2
  • Anzahl der Etagen : 1
  • Anzahl der Schlafzimmer : 4
  • Anzahl der Zimmer : 5
  • Anzahl der Badezimmer : 4
  • Anzahl der WC : 2
  • Parkplatz : Ja
  • Pool : Ja
  • Baujahr : 2025
  • Energieeffizien : A

OBJEKTBESCHREIBUNG

Umgebung von Medulin, beeindruckende moderne Villa am Meer mit Pool und spektakulärer Dachterrasse

In einem ruhigen Teil der Gemeinde Medulin, nur 50 Meter vom Meer entfernt, befindet sich diese außergewöhnlich geräumige und architektonisch beeindruckende moderne Villa, die auf höchsten Komfort, Privatsphäre und Luxus ausgelegt ist.

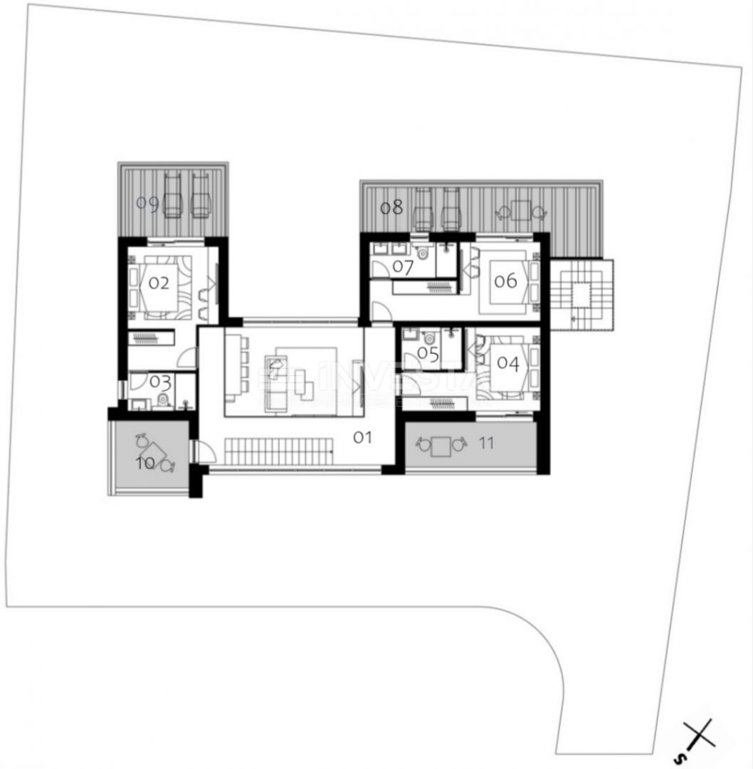
Die Villa erstreckt sich über drei Etagen mit einer Gesamtberechnungsfläche von 416,8 m², mit klar definierten Wohn-, Schlaf- und repräsentativen Außenbereichen.

Das zentrale Element der Villa ist ein beeindruckendes, offen gestaltetes Wohnzimmer mit einer Deckenhöhe von bis zu 6 Metern und einer Innen Galerie, das dem Raum außergewöhnliche Luftigkeit und Exklusivität verleiht. Das Wohnzimmer ist mit der Küche und dem Essbereich verbunden und geht nahtlos auf großzügige überdachte und offene Terrassen über, wodurch eine perfekte Verbindung von Innen- und Außenbereich entsteht. Im Erdgeschoss befinden sich zudem ein Schlafzimmer mit eigenem Bad, ein Gäste-WC, ein zusätzliches Pool-WC, ein Technikraum mit Waschmöglichkeit, Innen- und Außenlager sowie eine Treppe, die alle Etagen verbindet. Auf dem Grundstück stehen zwei überdachte und zwei offene Parkplätze sowie ein sehr großzügiger Garten mit beheiztem Pool zur Verfügung, ideal zum Entspannen und für geselliges Beisammensein.

Im ersten Stock, mit einer Gesamtfläche von 131,3 m², befindet sich der Nachtbereich mit drei geräumigen Schlafzimmern, von denen jedes über ein eigenes Badezimmer verfügt und so vollständige Privatsphäre für Familie und Gäste gewährleistet. Die Schlafzimmer öffnen sich auf mehrere überdachte Terrassen, die den Luxus zusätzlich betonen und den Genuss der Aussicht und der frischen Meeresluft ermöglichen.

Ein besonderes Highlight dieser Villa ist die Dachterrasse im dritten Stock, mit einer Gesamtfläche von 140,9 m² (berechnet 35,2 m²), konzipiert als privater Rooftop-Lounge. Dieser Bereich bietet einen spektakulären Panoramablick auf das Meer und die Umgebung und ist der ideale Ort zum Sonnenbaden, für abendliche Zusammenkünfte und ein vollständiges mediterranes Ambiente.

Die Villa ist mit hochwertigen Materialien und Ausstattungen ausgestattet, darunter italienische Fliesen und Türen, Grohe-Sanitäranlagen, Dreischicht-Parkett in den Schlafzimmern, Premium-Aluminiumfenster, Fußbodenheizung und Klimaanlage in allen Räumen, was einen ganzjährigen angenehmen Aufenthalt gewährleistet. Große Glasflächen bieten reichlich natürliches Licht und offene Aussichten, was den modernen Charakter der Villa weiter unterstreicht.

Dank der ausgezeichneten Verkehrsanbindung ist der Flughafen Pula schnell erreichbar, ebenso wie einfache Straßenverbindungen nach Slowenien, Österreich und Deutschland, wodurch diese Immobilie sowohl für die private Nutzung als auch für luxuriöse Touristenvermietung ideal ist.

Für weitere Informationen und zur Vereinbarung einer Besichtigung kontaktieren Sie uns bitte vertrauensvoll.

Đankarlo Čekić
Mob: +385 99 237 6130
Tel: +385 52 33 00 33
E-mail: dan@investa.hr
www.investa.hr

  • REI ID : 87731
  • Interne Agentur-ID : XML-3061-289130
  • Einfügen Datum : 21.01.2026.
  • Aktualisierungsdatum : 24.01.2026.
  • Anzahl der Aufrufe : 205
  • Anzeige melden

Alle Daten und Bilder auf diesen Websites werden nur zu Informationszwecken präsentiert, vor jeder Schlussfolgerung oder Aktivität auf der Grundlage von Daten von diesen Seiten sollten alle Informationen mit dem Inserenten überprüft werden.

KONTAKTIEREN SIE DEN AGENTEN