Luxuriöse zweistöckige Wohnung mit Pool im Hof

Wohnfläche

152.13 m2

Anzahl der Schlafzimmer

3

Anzahl der Badezimmer

3

Etage

1

Poreč
554.000 €
3.642 €/m2
  • Grundstücksfläche : 115 m2
  • Entfernung zum Zentrum : 9000 m
  • Entfernung zum Meer : 2500 m
  • Anzahl der Etagen : 2
  • Anzahl der Schlafzimmer : 3
  • Anzahl der Zimmer : 4
  • Anzahl der Badezimmer : 3
  • Anzahl der WC : 1
  • Meerblick : Ja
  • Parkplatz : Ja
  • Klimaanlage : Ja
  • Pool : Ja
  • Baujahr : 2024
  • Energieeffizien : Nicht bekannt

OBJEKTBESCHREIBUNG

Istrien, Poreč und Umgebung

In der Nähe der Stadt Poreč, unweit gepflegter Strände in einem kleinen Touristenort, befindet sich diese luxuriöse Wohnung auf zwei Etagen mit einer Gesamtfläche von 152,13 m² mit einem Swimmingpool im Hof.
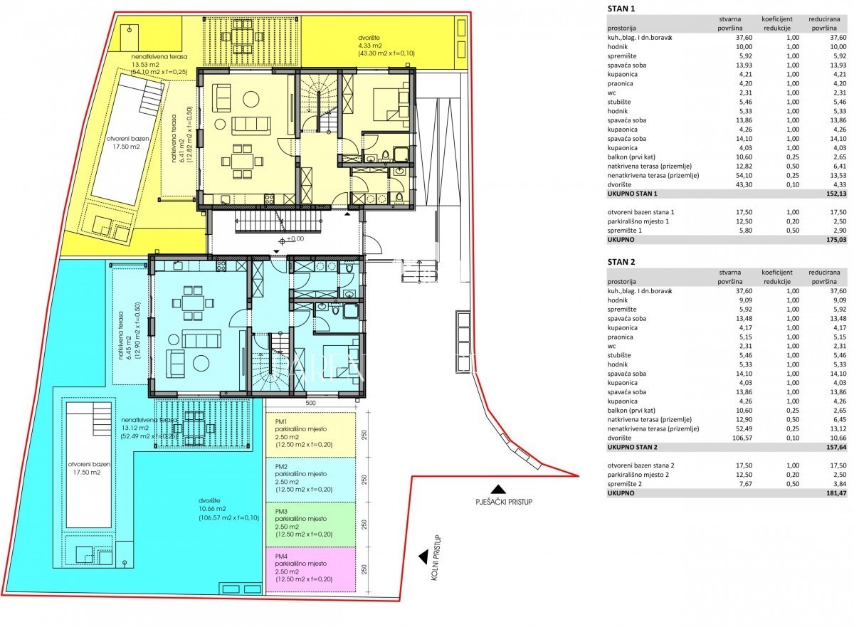
WOHNUNG 1 (GRUNDRISS IN GELBER FARBE)
Die Wohnung erstreckt sich über zwei Etagen: Erdgeschoss und 1. Stock.
Das Erdgeschoss besteht aus einem Flur, einem geräumigen Wohnzimmer mit offener Küche und Essbereich, einem Schlafzimmer, einem Badezimmer und einer Toilette.
Das Wohnzimmer hat direkten Zugang zu einer schönen überdachten Terrasse von 12,82 m2 und einer nicht überdachten Terrasse von 54 m2 sowie einem Swimmingpool im Hof ​​von 17,50 m2.
Der Zugang zum ersten Stock erfolgt über eine Innentreppe.
Dort befinden sich zwei weitere Schlafzimmer, jeweils mit eigenem Bad und Zugang zu einem 10,60 m2 großen Balkon mit Blick auf das Meer und die Stadt Poreč und die Insel Sv. Nikolaus.
Zur Wohnung gehören außerdem ein PKW-Stellplatz und ein Abstellraum im Keller.
Das Wohngebäude ist mit der gesamten kommunalen Infrastruktur (Straße, städtische Kanalisation, Strom- und Wasserversorgung) ausgestattet.
Der Käufer ist von der Zahlung der Grundsteuer befreit.
Das Gebäude befindet sich in einem ruhigen Dorf in der Nähe aller wichtigen Annehmlichkeiten (Restaurants, Apotheken, Bäckereien, Geschäfte usw.) und ist von Natur und Grün umgeben. Damit stellt es eine ideale Gelegenheit für alle dar, die eine attraktive Immobilie in Meeresnähe suchen, die sich zum Wohnen, für den Urlaub oder zur Vermietung für touristische Zwecke eignet.

  • REI ID : 54042
  • Interne Agentur-ID : 1228
  • Einfügen Datum : 08.04.2023.
  • Aktualisierungsdatum : 02.03.2026.
  • Anzahl der Aufrufe : 1387
  • Anzeige melden

Alle Daten und Bilder auf diesen Websites werden nur zu Informationszwecken präsentiert, vor jeder Schlussfolgerung oder Aktivität auf der Grundlage von Daten von diesen Seiten sollten alle Informationen mit dem Inserenten überprüft werden.

Haben Sie nicht gefunden, wonach Sie gesucht haben? Sehen Sie alle Wohnungen Poreč in unserem Angebot!

KONTAKTIEREN SIE DEN AGENTEN