Gebiet Višnjan: Baugrundstück mit Baugenehmigung, Strom- und Wasseranschluss!

Grundstücksfläche

564 m2

Entfernung zum Meer

17000 m

Višnjan
75.000 €
133 €/m2

OBJEKTBESCHREIBUNG

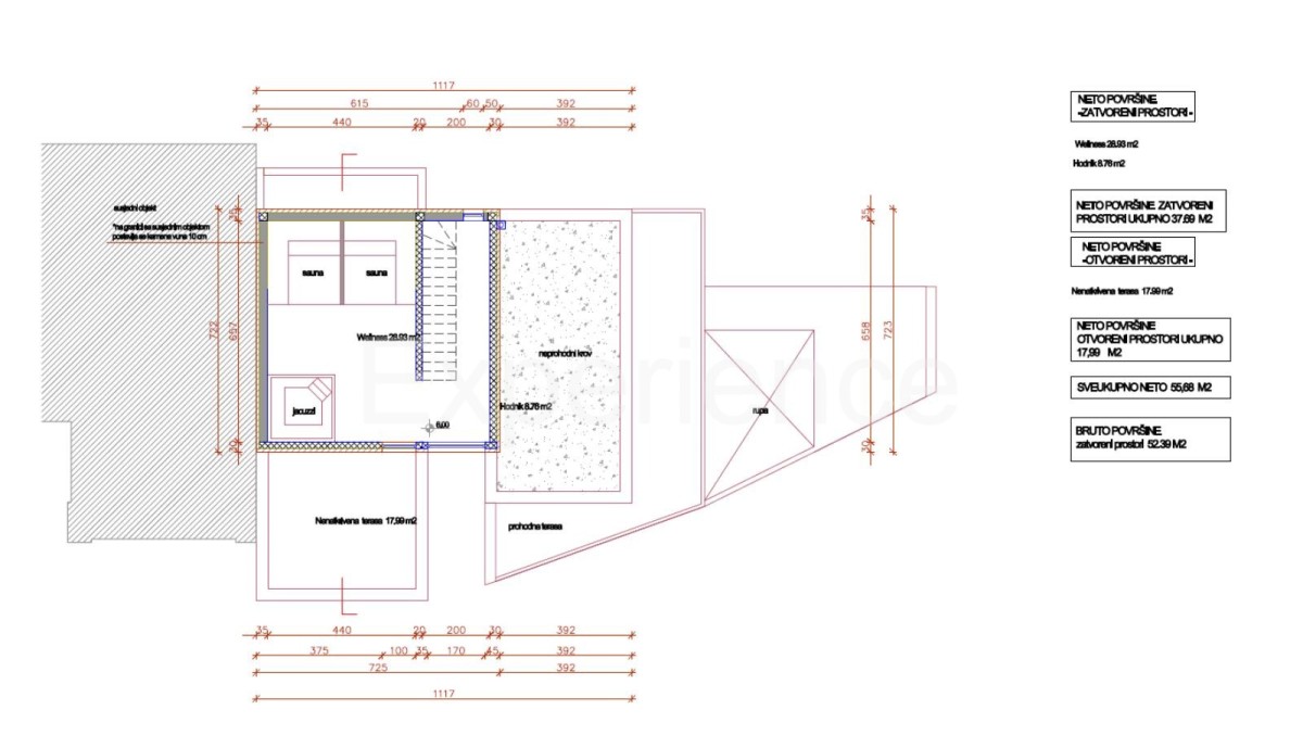
In der Nähe von Višnjan, in einer außergewöhnlich ruhigen Umgebung, steht ein Baugrundstück mit einer Fläche von 564 m² zum Verkauf. Das Grundstück befindet sich in einem typisch istrischen Dorf mit nur wenigen Häusern, am Rande des Dorfes. Das Gelände ist flach, erhöht und bietet einen offenen Panoramablick auf die umliegenden Hügel. Für den Bau eines Doppelfamilienhauses mit Swimmingpool mit einer Gesamtnettofläche von 317 m² wurde eine Baugenehmigung eingeholt und Nebenkosten bezahlt. Der Komunalbeitrag in Höhe von 7.500 € wurde entrichtet. Strom- und Wasseranschlüsse befinden sich neben dem Grundstück.

  • REI ID : 83504
  • Interne Agentur-ID : 2459
  • Einfügen Datum : 11.11.2025.
  • Aktualisierungsdatum : 12.03.2026.
  • Anzahl der Aufrufe : 354
  • Anzeige melden

Alle Daten und Bilder auf diesen Websites werden nur zu Informationszwecken präsentiert, vor jeder Schlussfolgerung oder Aktivität auf der Grundlage von Daten von diesen Seiten sollten alle Informationen mit dem Inserenten überprüft werden.

KONTAKTIEREN SIE DEN AGENTEN