Vodnjan area, building plot of 353 m² with a building permit for a 165 m² house

Plot size

353 m2

Vodnjan
69.000 €
195 €/m2

REAL ESTATE DESCRIPTION

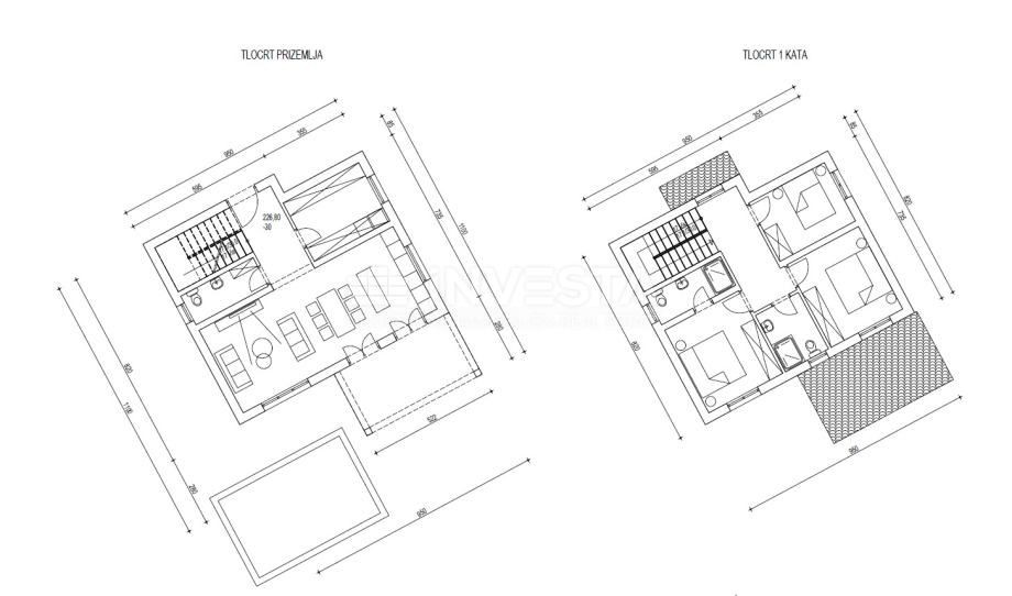
Vodnjan Area, Building Plot 353m² with Project for House 165m²

We are selling a building plot with a project for the construction of a house with a pool in the Vodnjan area. The total area of the land is 353m² + share in the access road. The building plot is designed for the construction of a family house with a gross area of 165m² with a pool. The house is planned as a two-storey building (ground floor + first floor). The main architectural project has been developed for the house, and the procedure for determining special conditions and connection conditions has been conducted. The projects have been submitted to the relevant authority, and we are waiting for the building permit to be issued. Please note that the current price is valid until the building permits are issued, and the selling price will increase after the permits are issued. Subsequent amendments to the project are possible according to the needs of the new owners.

Ownership of the land is clean, without encumbrances. There is an option to agree on construction works up to the rough construction phase according to a previous contract, with an appropriate financing schedule. The access road is in order, and the land is located in a village in the Vodnjan area, towards the interior of Istria, surrounded by other houses. The position of the building land facilitates access to electricity and water connections.

This building land is one of five plots on which houses will be built, so there is a possibility of purchasing one or more plots. The developed main projects and the conducted procedure for determining special conditions significantly speed up the time needed for construction. The proximity of infrastructure and approved connection conditions further accelerates the start of construction, making this project interesting for all those who want to build their new house as soon as possible.

Take this opportunity to build your own house with a pool in Istria, under very favorable land purchase conditions, just 20 minutes drive to the sea and the beautiful beaches for which Istria is known. The land location is such that it is 10 minutes from the exit of the Istrian highway, which connects you to all cities in Istria in less than an hour. It should certainly be emphasized that there are numerous cycling paths that are the best way to explore Istria, one of which leads by this land.

The Mediterranean mild climate, clean and unpolluted sea and air, safety in movement, unspoiled nature, hospitable hosts, quality food, award-winning and world-famous olive oils and wines, wild asparagus and mushrooms, and much more are definitely good arguments for considering your own home in Istria.

For all additional information or to arrange a viewing, feel free to contact us with confidence!



Đankarlo Čekić
Mob: +385 99 237 6130
Tel: +385 52 33 00 33
E-mail: dan@investa.hr
www.investa.hr

  • REI ID : 77271
  • Internal agency ID : XML-3061-103188
  • Insert date : 02.06.2025.
  • Aktualisierungsdatum : 18.10.2025.
  • Number of views : 592
  • Report an ad

All data and images on these websites are presented for informational purposes only, before any conclusion or activity based on data from these pages, all information should be checked with the advertiser.

CONTACT THE AGENT